Create Derived Drawing (BIM-PLM )
PDM > Drawing > Drawing derivation 
Use this function to create a new workshop/detail drawing.
This function works in largely the same way as the same-named function on the Steel Engineering tab, it does however offer the following additional enhancements and advantages:
- A HELiOS document item will automatically be created for automatically generated HiCAD production drawings.
- It will automatically be checked whether parts without production drawings exist, and whether there are outdated drawings. The part list will be passed, for the new creation and updating of linked production drawings, to the corresponding HiCAD functions.
- Automatically created, external workshop and detail drawings will be updated automatically.
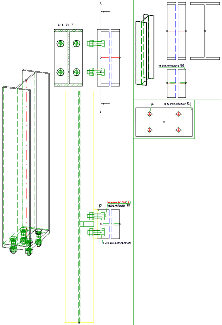
When you call the function, the Derived drawing dialogue window will be displayed:
Proceed as follows:
- If you want to use an already existing settings file or configuration, select and load one. Change the settings in the dialogue window if desired.
- Select the Drawing target for the workshop /detail drawing creation from the listbox.
- In the Sheet selection area, specify whether you want the output to be made to a new sheet or to an already existing sheet.
- Select the desired Alignment of assemblies: In production position or fitting position ("ready-to-use position").
- In the Part selection area, specify the part types you want to take over into the workshop drawing, either via selection from the list box or by activating the appropriate checkboxes.
- Specify the Views to be created for assemblies, beams and plates and sheets.
- Specify the View groups to be created by activating the appropriate checkboxes.
- Specify the Settings for drawing sheets, view groups and views as required.
If you have specified all required settings, exit the window with OK. The settings are then temporarily used as default settings (for the current HiCAD session). If you want to save the current settings for re-use at a later point, click Save and specify the name and path of the configuration. The settings can be accessed at any time again via the Load button. If you chose the part selection option Select, individually, HiCAD will prompt you to identify the parts for the workshop drawing. You end your selection with the middle mouse button.
The workshop drawing is automatically created as sheet view - either in the current drawing or in a new drawing - and can then be opened via the Views tab in the ICN
Please note:
- Deriveddrawings which have been automatically generated with the BIM-PLM functions are locked against manual modifications. When you try to change any parts in the drawing, the following message will be displayed: Automatically detailed parts cannot be processed in automatically created external production drawings.
- The parts of the automatically created drawings are (unilaterally) referenced in the direction of the original drawing and identified in the ICN with a
symbol. The referencing is unilateral, i.e. in case of changes to the model, the workshop drawing can automatically be updated.
- Ensure that the required HiCAD catalogues (Fasteners etc.) are also available in HELiOS. If this is not the case, you need to transfer them, via the Catalogue Editor, to HELiOS.(for further information please see the Online Help of the Catalogue Editor)
Related Topics
Derived Drawings (BIM-PLM )
Version 1702 - HiCAD BIM-PLM | Date: 9/2012 | © Copyright 2012,
ISD Software und Systeme GmbH