Creating New Parts and Variants

Besides using the part and variants which have been predefined by the ISD you can also create,

Please note that for the creation of new parts and new variants certain rules, depending on the particular part type, need to be respected.

IMPORTANT - Please note the following when working with user-defined variants for flanges or parts with flanges:

You can use the Flange connection, bolted functions of the Plant Engineering module to place boltings on flange connections. To ensure that the boltings match the flanges, the functions will evaluate the variables of the part variant to which the flange belongs. This also needs to be considered if construct your own parts/variants with flange connections, because otherwise, problems will occur during their processing with the flange connection functions.

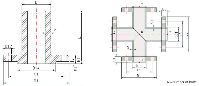
The following table shows the lists of variables. The second place of the variable's designation must match the connection number. The list here refers to the example of the first connection of a part.

Hence, the variables of the second connection will have the designations B2, C2, F2, A2, D22.

 

Additional, part-specific rules apply during evaluation:

  1. If the variables C1 and F1 are defined in a loose flange, the grip length of the bolting will be determined via the value C1+F1 istead of using B1.
  2. For blank flanges the variable L instead of B1 will be used for grip length determination provided that L has been defined.

The value of the variables NI (capital "N", capital "i", NO "1"!) is used as an additional attribute during creation or querying of an article master in HELiOS. It represents the nominal diameter in Inches

.

The procedures and rules for the creation of parts and variants can also be found in this PDF file.

Rules for the Creation of User-Defined Parts (PE)Rules for the Creation of User-Defined Feature Variants (PE)