Bemaßungsregeln - Übersicht
Bemaßungsregeln lassen sich in mehrere Gruppen unterteilen:
- Systemmaße
- Abmessungen von Baugruppen
- Abmessungen von Profilen
- Lage von Nebenteilen von Profilen
- Bearbeitungen von Profilen
- Abmessungen von Blechen
- Bearbeitungen von Blechen
- Bohrungsdurchmesser in Profilen oder Blechen
- Lage von Nebenteilen einer Baugruppe zueinander
- Bearbeitungen von Nebenteilen einer Baugruppe
- Kantbleche
- Treppengeländer
- Abmessungen in Blechabwicklungen
Im Editor für Bemaßungsregeln lassen sich die Regeln nach diesen Gruppen filtern.
Bitte beachten Sie auch die Hinweise im Abschnitt Hinweise zu Bemaßungsregeln und -einstellungen.
Systemmaße
|
Wert |
Erklärung |
Bezeichnung/ Rule Identifier |
|---|---|---|
|
1 |
Länge zwischen den Systemachsen |
SYSTEMLENGTH |
|
71 |
Subsystem in Obergurtebene |
SUBSYSTEM_UPPERFLANGE Es werden nur Raster- und Subrasterlinien bemaßt, keine Bauteile! |
|
72 |
Subsystem in Untergurtebene |
SUBSYSTEM_LOWERFLANGE Es werden nur Raster- und Subrasterlinien bemaßt, keine Bauteile! |
|
73 |
Subsystem in Stegebene |
SUBSYSTEM_WEBFACE Es werden nur Raster- und Subrasterlinien bermaßt, keine Bauteile! |
|
74 |
Subsystem in Ober- und Untergurtebene |
SUBSYSTEM_FLANGES Es werden nur Raster- und Subrasterlinien bemaßt, keine Bauteile! |
|
75 |
Subsystem in Ober-, Untergurt- und Stegebene |
SUBSYSTEM_WEB_AND_FLANGES Es werden nur Raster- und Subrasterlinien bemaßt, keine Bauteile! |
Abmessungen von Baugruppen
|
Wert |
Erklärung |
Bezeichnung/ Rule Identifier |
|---|---|---|
|
2 |
Baugruppenlänge |
ASSEMBLYLENGTH |
|
19 |
Baugruppenhöhe |
ASSEMBLY_HEIGHT |
|
20 |
Baugruppenlänge |
ASSEMBLY_WIDTH
|
|
90 |
Gesamtabmessungen diagonal einer Baugruppe (mit oder ohne Hauptteil) |
TOTAL_SIZE_ASSEMBLY Speziell für Rahmen (Baugruppe ohne Hauptteil) |
Abmessungen von Profilen
|
Wert |
Erklärung |
Bezeichnung/ Rule Identifier |
|---|---|---|
|
3 |
Achslänge |
LENGTH_OF_AXIS |
|
4 |
Profillänge ohne stirnseitige Anbauteile |
PROFLENGTH_WITHOUT |
|
9 |
Profillänge incl. stirnseitigen Anbauteilen |
PROFLENGTH_WITH |
|
17 |
Profilhöhe |
PROFILE_HEIGHT |
|
18 |
Profilbreite |
PROFILE_WIDTH
|
|
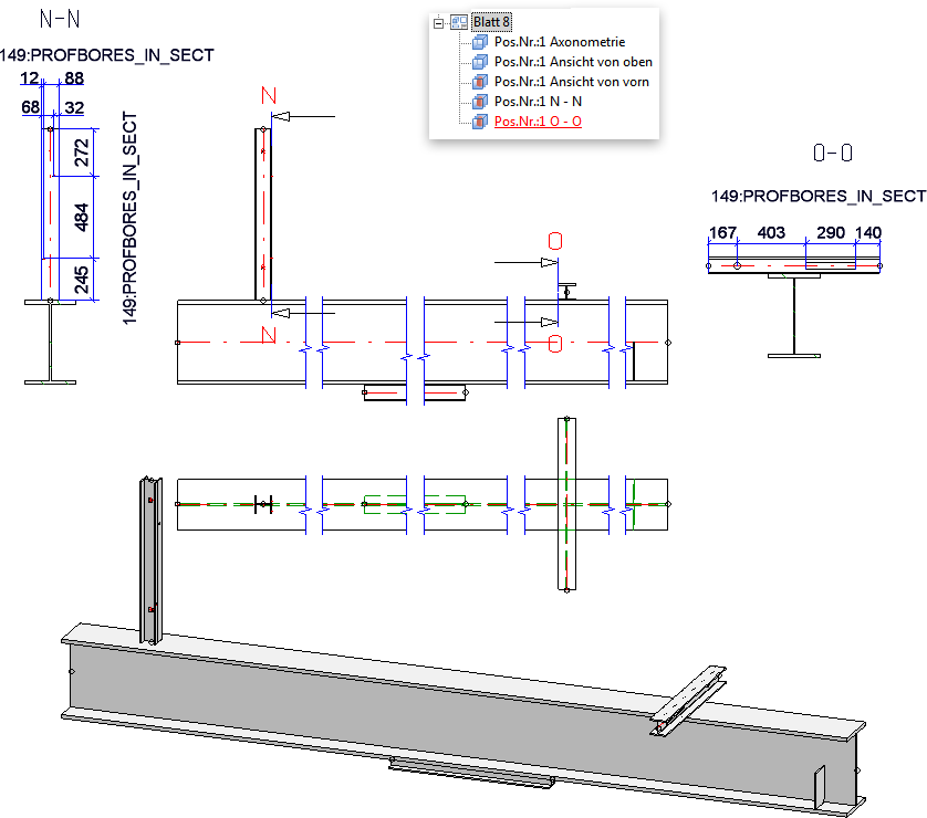
146 |
Länge von Profilnebenteilen in Schnittansichten |
PROFILE_LENGTH_IN_SECT
|
|
147 |
Breite von Profilnebenteilen in Schnittansichten |
PROFILE_WIDTH_IN_SECT
|
|
148 |
Höhe von Profilnebenteilen in Schnittansichten |
PROFILE_HEIGHT_IN_SECT |
Lage von Nebenteilen von Profilen
|
Wert |
Erklärung |
Bezeichnung/ Rule Identifier |
|---|---|---|
|
5 |
Untersystem Profil-Oberseite |
PROFSYSTEM_UPPERSIDE nur Profile, deren Querschnitt || zur Bildschirmebene, nur || zur Profilachse
|
|
6 |
Untersystem Profil-Stegfläche |
PROFSYSTEM_WEBFACE
|
|
7 |
Untersystem Profil-Unterseite |
PROFSYSTEM_LOWERSIDE |
|
8* |
Anbauteile über Außenkontur |
ATTACHING_PARTS über Außenkontur, nicht über Bohrungen |
|
10* |
Blech-Anbauteile mit Bohrbearbeitungen |
ATTACHING_SHEETS Blech-Anbauteile über Bohrung oder Außenkontur
|
|
26 |
Bohrungen in Stirnplatten |
BORES_IN_FRONT_PLATE |
|
56 |
Lage des Bleches, festgelegt durch eine Bohrung und das Referenzbauteil |
SHEET_POSITION_IN_SECT
|
|
57 |
Blech-Anbauteile, eine Maßkette für jedes Blech |
ATTACHING_SHEETS_SEPERATELY Über Bohrungen, falls diese senkrecht zur Bildschirmebene und Bohrungen von Nebenteilen vermaßt werden, oder über Außenkontur; Dies ist die einzige profilbezogene Regel, für die die Richtung VERTIKALSHEETAXIS im Zusammenhang mit der Position INSIDE zulässig ist, um z. B. Stirnplatten an Anschnitten in Blechrichtung zu bemaßen! |
|
66* |
Blech-Anbauteile Profiloberseite, über Bohrungen oder Außenkontur |
ATTACHING_SHEET_UPPERSIDE |
|
67* |
Blech-Anbauteile Profilunterseite, über Bohrungen oder Außenkontur |
ATTACHING_SHEET_LOWERSIDE |
|
68* |
Blech-Anbauteile Stegfläche, vor dem Steg, über Bohrungen oder Außenkontur |
ATTACHING_SHEET_BEFORE_WEB |
|
69* |
Blech-Anbauteile Stegfläche, hinter dem Steg, über Bohrungen oder Außenkontur |
ATTACHING_SHEET_BEHIND_WEB |
|
70* |
Profil-Anbauteile mit Achse + zur Hauptbauteilachse, über Systemachse vermaßen |
ATTACHING_PROFILES_VERT
|
|
83 |
Blech-Anbauteile mit Bohrbearbeitungen incl. Bohrungen + Blickrichtung |
ATTACHING_SHEETS_VERT |
|
84 |
Bohrungen in Nebenteilen (Bohrungen von allen Nebenteilen) incl. Bohrungen + Blickrichtung |
SUBPARTBORES_VERT |
|
89 |
Bohrungen im HT + NT-Bleche + NT-Profile über Bohrung bzw. Außenkante (nur parallel zur Trägerachse) |
ALL_PARTS_BORES |
|
111 |
Winkel zwischen Profilhauptteil und daran angeschlossenen Nebenteilprofilen |
STWDimRuleIdent_ANGLE_CONNECTED_PROFILES |
|
113* |
Profilnebenteile am Oberflansch, nicht senkrecht zur Hauptteilachse |
ATTACHING_PROFILES_INUPPERFLANGE |
|
114* |
Profilnebenteile am Unterflansch, nicht senkrecht zur Hauptteilachse |
ATTACHING_PROFILES_INLOWERFLANGE |
|
115* |
Profilnebenteile vor dem Steg, nicht senkrecht zur Hauptteilachse |
ATTACHING_PROFILES_BEFORE_WEB |
|
116* |
Profilnebenteile hinter dem Steg, nicht senkrecht zur Hauptteilachse |
ATTACHING_PROFILES_BEHIND_WEB |
|
117* |
Profilnebenteile, nicht senkrecht zur Hauptteilachse |
ATTACHING_PROFILES |
|
138 |
Anbauteile über Bohrung (auch senkrecht zur Ansicht) oder Außenkontur, vor der Hauptteilachse liegend |
ATTACHING_PARTS_VERT_BEFORE_AXIS Die folgende Abbildung zeigt ein Profilhauptteil und ein Blech mit 2 Bohrungen als Anbauteil (1). In der Konfiguration wird die Bemaßungsregel 138 wie abgebildet (2) verwendet. (3) und (4) zeigen die Ansicht von vorne in Werkstattzeichnung. In (3) werden die Anbauteile über Bohrungen bemaßt, in (4) über die Außenkontur.
|
|
139 |
Anbauteile über Bohrung (auch senkrecht zur Ansicht) oder Außenkontur, hinter der Hauptteilachse liegend |
ATTACHING_PARTS_VERT_BEHIND_AXIS
|
|
140 |
Anbauteile über Bohrung (auch senkrecht zur Ansicht) oder Außenkontur, oberhalb der Hauptteilachse liegend |
ATTACHING_PARTS_VERT_ABOVE_AXIS
|
|
141 |
Anbauteile über Bohrung (auch senkrecht zur Ansicht) oder Außenkontur, unterhalb der Hauptteilachse liegend |
ATTACHING_PARTS_VERT_BELOW_AXIS
|
|
150 |
Lage des Profilnebenteils in Schnittansichten |
PROF_POSITION_IN_SECT |
* siehe Hinweise zu Bemaßungsregeln
Bearbeitungen von Profilen
|
Wert |
Erklärung |
Bezeichnung/ Rule Identifier |
|---|---|---|
|
11 |
Bohrungen in Nebenteilen |
SUBPARTBORES |
|
12 |
Profilbohrbearbeitungen im Steg |
PROFBORES_INWEB |
|
13 |
Profilbohrbearbeitungen im Oberflansch |
PROFBORES_INUPPERFLANGE
|
|
14 |
Profilbohrbearbeitungen im Unterflansch |
PROFBORES_INLOWERFLANGE |
|
15 |
Profilbohrbearbeitungen in Ober-und Unterflansch |
PROFBORES_INFLANGES |
|
16 |
Profilbohrbearbeitungen-Systemversatz parallel zu Profilachse |
PROFBORES_SYSTEMOFFSET_PARALLEL |
|
21 |
Ausklinkungslänge am Anfang |
NOTCH_LENGTH_BEGIN |
|
22 |
Ausklinkungsbreite am Anfang |
NOTCH_WIDTH_BEGIN |
|
23 |
Ausklinkungslänge am Ende |
NOTCH_LENGTH_END |
|
24 |
Ausklinkungsbreite am Ende |
NOTCH_WIDTH_END |
|
27 |
schräger Profilanschnitt am Anfang |
DIAGONAL_CUT_BEGIN |
|
28 |
schräger Profilanschnitt am Ende |
DIAGONAL_CUT_END |
|
58 |
Radius der Rundungen an Profilausklinkungen |
PROFOUTLINE_RADIUS |
|
59 |
Radius der Rundungen an Profilausnehmungen |
PROFBORES_RADIUS |
|
64 |
Länge des Anschnittes am Profilanfang |
SECTION_LENGTH_BEGIN |
|
65 |
Länge des Anschnittes am Profilende |
SECTION_LENGTH_END |
|
85 |
Profilbohrbearbeitungen im Steg inkl. Bohrungen + Blickrichtung |
PROFBORES_INWEB_VERT |
|
86 |
Profilbohrbearbeitungen im Oberflansch inkl. Bohrungen + Blickrichtung |
PROFBORES_INUPPERFLANGE_VERT |
|
87 |
Profilbohrbearbeitungen im Unterflansch incl. Bohrungen + Blickrichtung |
PROFBORES_INLOWERFLANGE_VERT |
|
88 |
Profilbohrbearbeitungen in Ober-und Unterflansch inkl. Bohrungen + Blickrichtung |
PROFBORES_INFLANGES_VERT |
|
123 |
Winkel zwischen Bohrungsachsen |
BORE_ANGLES (nur in der Ansicht von links und rechts und nur parallel zur Bildschirmebene!) |
|
124 |
Profilbohrbearbeitungen vom Typ Langloch |
PROF_LONGHOLES_ONLY
|
|
125 |
Profilbohrbearbeitungen vom Typ Langloch im Oberflansch |
PROF_LONGHOLES_ONLY_INUPPERFLANGE |
|
126 |
Profilbohrbearbeitungen vom Typ Langloch im Unterflansch |
PROF_LONGHOLES_ONLY_INLOWERFLANGE |
|
127 |
Profilbohrbearbeitungen vom Typ Langloch im Steg |
PROF_LONGHOLES_ONLY_INWEB |
|
128 |
Profilbohrbearbeitungen vom Typ kreisförmige Bohrung, separate Kette je Bohrungsdurchmesser |
PROF_CIRCLEBORES_ONLY |
|
129 |
Profilbohrbearbeitungen vom Typ kreisförmige Bohrung im Oberflansch, separate Kette je Bohrungsdurchmesser |
PROF_CIRCLEBORES_ONLY_INUPPERFLANGE |
|
130 |
Profilbohrbearbeitungen vom Typ kreisförmige Bohrung im Unterflansch, separate Kette je Bohrungsdurchmesser |
PROF_CIRCLEBORES_ONLY_INLOWERFLANGE |
|
131 |
Profilbohrbearbeitung vom Typ kreisförmige Bohrung im Steg, separate Kette je Bohrungsdurchmesser |
PROF_CIRCLEBORES_ONLY_INWEB |
|
142 |
Profilbohrbearbeitungen, vor der Hauptteilachse liegend |
PROFBORES_BEFORE_AXIS Die Regeln 142- 145 erzeugen separate Maßketten je nach Lage der Bearbeitung bezogen auf die Profilachse. Sollen senkrechte Bemaßungen je nach Lage der Bearbeitung bezogen auf die Profilmitte nach links bzw. rechts herausgezogen werden, dann lässt sich dies durch Auswahl von Lage: Automatisch erreichen. |
|
143 |
Profilbohrbearbeitungen, hinter der Hauptteilachse liegend |
PROFBORES_BEHIND_AXIS |
|
144 |
Profilbohrbearbeitungen, oberhalb der Hauptteilachse liegend |
PROFBORES_ABOVE_AXIS |
|
145 |
Profilbohrbearbeitungen, unterhalb der Hauptteilachse liegend |
PROFBORES_BELOW_AXIS |
|
149 |
Bohrungen in Profilnebenteilen in Schnittansichten |
PROFBORES_IN_SECT |
|
151 |
Profilbohrbearbeitungen im Oberflansch, getrennt nach Lage bzgl. der Profilachse |
PROFBORES_INUPPERFLANGE_SEPERATED |
|
152 |
Profilbohrbearbeitungen im Unterflansch, getrennt nach Lage bzgl. der Profilachse |
PROFBORES_INLOWERFLANGE_SEPERATED
|
|
153 |
Profilbohrbearbeitungen im Steg, getrennt nach Lage bzgl. der Profilachse Die Regeln 151, 152 und 153 gelten nur für Bemaßungen parallel zur Profilachse, da es senkrecht zur Profilachse noch andere Trennungsmechanismen gibt. Es werden nur Bohrungen, die in der Ansichtsebene liegen, berücksichtigt. Wird als Lage automatisch gewählt, werden die Maßketten entsprechend der Lage der Bohrungen nach oben oder unten heraus gezogen. |
PROFBORES_INWEB_SEPERATED |
Abmessungen von Blechen
|
Wert |
Erklärung |
Bezeichnung/ Rule Identifier |
|---|---|---|
|
29 |
Blechlänge |
SHEET_LENGTH |
|
30 |
Blechbreite |
SHEET_WIDTH |
|
31 |
Blechdicke |
SHEET_THICKNESS |
|
47 |
Länge von Blechen (NT) in Schnittansichten |
SHEET_LENGTH_IN_SECT |
|
48 |
Breite von Blechen (NT) in Schnittansichten |
SHEET_WIDTH_IN_SECT |
Bearbeitungen von Blechen
|
Wert |
Erklärung |
Bezeichnung/ Rule Identifier |
|---|---|---|
|
32 |
Bohrungen in Blechen rechtsseitig |
SHEETBORES_RIGHT |
|
33 |
Bohrungen in Blechen linksseitig |
SHEETBORES_LEFT |
|
34 |
Bohrungen in Blechen rechts- oder linksseitig |
SHEETBORES_RIGHTANDLEFT |
|
35 |
Bohrungen in Blechen in oberer Hälfte |
SHEETBORES_ABOVE |
|
36 |
Bohrungen in Blechen in unterer Hälfte |
SHEETBORES_BELOW |
|
37 |
Bohrungen in Blechen in oberer oder unterer Hälfte |
SHEETBORES_ABOVEANDBELOW |
|
38 |
Außenkontur in Blechen rechtsseitig |
SHEETOUTLINE_RIGHT |
|
39 |
Außenkontur in Blechen linksseitig |
SHEETOUTLINE_LEFT |
|
40 |
Außenkontur in Blechen rechts- oder linksseitig |
SHEETOUTLINE_RIGHTANDLEFT |
|
41 |
Außenkontur in Blechen in oberer Hälfte |
SHEETOUTLINE_ABOVE |
|
42 |
Außenkontur in Blechen in unterer Hälfte |
SHEETOUTLINE_BELOW |
|
43 |
Außenkontur in Blechen in oberer oder unterer Hälfte |
SHEETOUTLINE_ABOVEANDBELOW |
|
49 |
Außenkontur rechts und links von Blechen (NT) in Schnittansichten |
SHEETOUTLINE_RIGHTANDLEFT_IN_SECT |
|
50 |
Außenkontur oben und unten von Blechen (NT) in Schnittansichten |
SHEETOUTLINE_ABOVEANDBELOW_IN_SECT |
|
51 |
Bohrungen in Blechen (NT) in Schnittansichten rechts- oder linksseitig |
SHEETBORES_RIGHTANDLEFT_IN_SECT |
|
52 |
Bohrungen in Blechen (NT) in Schnittansichten in oberer oder unterer Hälfte |
SHEETBORES_ABOVEANDBELOW_IN_SECT |
|
60 |
Radius der Rundungen an Außenkonturen von Blechen |
SHEETOUTLINE_RADIUS |
|
61 |
Radius der Rundungen an Ausnehmungen von Blechen |
SHEETBORES_RADIUS |
|
62 |
Radius der Rundungen an Außenkonturen von Blechen in Schnittansichten |
SHEETOUTLINE_RADIUS_IN_SECT |
|
63 |
Radius der Rundungen an Ausnehmungen von Blechen in Schnittansichten |
SHEETBORES_RADIUS_IN_SECT |
|
154 |
Schräge Blechanschnitte |
SHEET_DIAGONAL_CUT |
Bohrungsdurchmesser in Profilen oder Blechen
|
Wert |
Erklärung |
Bezeichnung/ Rule Identifier |
|---|---|---|
|
44 |
Durchmesser einfacher Bohrungen im Hauptteil |
BORE_DIAMETER_MAINPART |
|
45 |
Durchmesser Normteilbohrungen im Hauptteil |
NORMBORE_DIAMETER_MAINPART |
|
46 |
Durchmesser Verschraubungen im Hauptteil |
CONNECTION_DIAMETER_MAINPART |
|
53 |
Durchmesser einfacher Bohrungen in Blechen/Profilen (NT) in Schnittansichten
|
BORE_DIAMETER_IN_SECT |
|
54 |
Durchmesser Normteilbohrungen in Blechen/Profilen (NT) in Schnittansichten
|
NORMBORE_DIAMETER_IN_SECT |
|
55 |
Durchmesser Verschraubungen in Blechen/Profilen (NT) in Schnittansichten |
CONNECTION_DIAMETER_IN_SECT |
Lage von Nebenteilen einer Baugruppe zueinander
|
Wert |
Erklärung |
Bezeichnung/ Rule Identifier |
|---|---|---|
|
76 |
Länge von Profilnebenteilen |
PROFILELENGTH_ATTACHING_PROFILES Nebenteillänge aller (auch schräg liegender) Nebenteile |
|
77 |
Angeschlossene Profilnebenteile |
CONNECTED_PROFILES Anfang und Ende aller direkten Anschlüsse von Nebenteilen an das Hauptteil |
|
80 |
Angeschlossene Profilnebenteile an maßgebenden Profilen |
CONNECTED_PROFILES_RELEVANTPROFILES Anfang und Ende aller direkten Anschlüsse von Nebenteilen an maßgebende Bauteile |
|
94* |
sämtliche Anbauteile (über Außenkontur, nicht über Bohrungen) von maßgebenden Profilnebenteilen |
ATTACHING_PARTS_RELVPROFS |
|
96* |
Blech-Anbauteile mit Bohrbearbeitungen (Blech-Anbauteile über Bohrung oder Außenkontur) von rel. Profilnebenteilen |
ATTACHING_SHEETS_RELVPROFS |
| 105 | Blech-Anbauteile an maßgebenden Profilnebenteilen, eine Maßkette für jedes Blech |
ATTACHING_SHEETS_SEPERATELY_RELVPROFS |
| 106 | Blech-Anbauteile Profiloberseite an maßgebenden Profilnebenteilen, über Bohrungen oder Außenkontur |
ATTACHING_SHEET_UPPERSIDE_RELVPROFS |
| 107 |
Blech-Anbauteile Profilunterseite an maßgebenden Profilnebenteilen, über Bohrungen oder Außenkontur |
ATTACHING_SHEET_LOWERSIDE_RELVPROFS |
| 108 |
Blech-Anbauteile Stegfläche an maßgebenden Profilnebenteilen, vor dem Steg, über Bohrungen oder Außenkontur |
ATTACHING_SHEET_BEFORE_WEB_RELVPROFS |
| 109 |
Blech-Anbauteile Stegfläche an maßgebenden Profilnebenteilen, hinter dem Steg, über Bohrungen oder Außenkontur |
ATTACHING_SHEET_BEHIND_WEB_RELVPROFS |
|
110* |
Profilanbauteile an maßgebenden Profilnebenteilen |
ATTACHING_PROFILES_VERT_RELVPROFS |
|
112 |
Winkel zwischen maßgebenden Profilen und daran angeschlossenen Nebenteilprofilen |
STWDimRuleIdent_ANGLE_CONNECTED_PROFILES_RELPROFS |
* siehe Hinweise zu Bemaßungsregeln
Bearbeitungen von Nebenteilen einer Baugruppe
|
Wert |
Erklärung |
Bezeichnung/ Rule Identifier |
|---|---|---|
|
98 |
Profilbohrbearbeitungen im Steg von maßgebenden Profilnebenteilen |
PROFBORES_INWEB_RELVPROFS |
|
99 |
Profilbohrbearbeitungen im Oberflansch von maßgebenden Profilnebenteilen |
PROFBORES_INUPPERFLANGE_RELVPROFS |
|
100 |
Profilbohrbearbeitungen im Unterflansch von maßgebenden Profilnebenteilen |
PROFBORES_INLOWERFLANG_RELVPROFS |
|
101 |
Profilbohrbearbeitungen in Ober-und Unterflansch von maßgebenden Profilnebenteilen |
PROFBORES_INFLANGES_RELVPROFS |
Kantbleche
|
Wert |
Erklärung |
Bezeichnung/ Rule Identifier |
|---|---|---|
|
132 |
Kantblechlänge |
SHEETMETAL_LENGTH |
|
133 |
Kantblechbreite |
SHEETMETAL_WIDTH |
|
134 |
Kantblechhöhe |
SHEETMETAL_HEIGHT |
|
135 |
Parameter-Streckenmaße von Kantblechen |
SHEETMETAL_PARA_DISTANCE |
|
136 |
Parameter-Winkelmaße von Kantblechen |
SHEETMETAL_PARA_ANGLE |
|
137 |
Parameter-Kreismaße von Kantblechen |
SHEETMETAL_PARA_CIRCLEDIM |
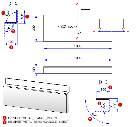
|
155 |
Laschenlänge von Kantblechen in Schnittansichten
|
SHEETMETAL_FLANGE_INSECT
Beachten Sie: Beim Bemaßen der Laschenlänge eines Kantblechs in der Schnittansicht wird folgender Fußpunkt bemaßt:
Die nachfolgende Abbildung zeigt ein Beispiel. Die Lasche (1) hat einen Winkel von 45° zur nächsten Lasche, die Lasche (2) hat einen Winkel von 95° zur nächsten Lasche. In der Schnittansicht wird für Lasche (1) der Tangentialpunkt und für Lasche (2) der theoretische Schnittpunkt als Fußpunkt bemaßt.
|
|
156 |
Öffnungswinkel der Biegezonen von Kantblechen in Schnittansichten |
SHEETMETAL_BENDINGANGLE_INSECT |
|
157 |
Bohrungen in Kantblechen |
SHEETMETALBORES |
|
158 |
Bohrungen in Kantblechen incl. Bohrungen senkrecht zur Ansicht |
SHEETMETALBORES_VERT |
|
159 |
Außenkonturen von Kantblechen |
SHEETMETALOUTLINE |
|
160 |
Bohrungen in Kantblechen, Maßketten nach Laschen getrennt |
SHEETMETALBORES_SEPERATED |
|
161 |
Bohrungen in Kantblechen incl. Bohrungen senkrecht zur Ansicht, Maßketten nach Laschen getrennt |
SHEETMETALBORES_VERT_SEPERATED |
|
162 |
Außenkonturen von Kantblechen, Maßketten nach Laschen getrennt |
SHEETMETALOUTLINE_SEPERATED |
|
Das Kantblech wird mit seinen Laschen und Biegezonen als ein Hauptteil behandelt. Bitte sorgen Sie für ein sinnvolles Koordinatensystem der Teile, indem Sie die Funktionen unter Ausrichtung abgeleiteter Zeichnungen im Kontextmenü für 3D-Teile verwenden. |
Die folgende Abbildung zeigt ein Kantblech mit verschiedenen Bohrungen. Zur Ausrichtung abgeleiteter Zeichnungen wurde die Draufsicht wie abgebildet in die Laschenfläche(1) gelegt. (2) zeigt die Vorderansicht der Zeichnungsableitung, (3) die Draufsicht. Als Vorlage wurde die Konfiguration DEFAULT(KANTBLECHE) verwendet - erweitert um die Regeln 157, 158 und 161.
|
|
|
163 |
Agraffe in Kantblechen über Bemaßungspunkt bemaßen |
SHEETMETAL_DIMPOINT_AGRAFFE
(1) Bemaßungspunkt der Agraffe |
Treppengeländer
|
Wert |
Erklärung |
Bezeichnung/ Rule Identifier |
|---|---|---|
|
1001 |
Gesamtlänge der Baugruppe Geländersegment |
TOTAL_LENGTH_RAILINGSEGMENT nur für Baugruppe Geländersegment |
|
1002 |
Gesamthöhe der Baugruppe Geländersegment |
TOTAL_HEIGHT_RAILINGSEGMENT nur für Baugruppe Geländersegment |
|
1003 |
Gesamtlänge der Baugruppe Geländersegment ohne Fußplatten |
TOTAL_LENGTH_RAILINGSEG_WITHOUT nur für Baugruppe Geländersegment: |
|
1004 |
Gesamthöhe der Baugruppe Geländersegment ohne Fußplatten |
TOTAL_HEIGHT_RAILINGSEG_WITHOUT nur für Baugruppe Geländersegment |
|
1005 |
Gesamtabmessung der Baugruppe Geländersegment |
TOTAL_SIZE_RAILINGSEGMENT nur für Baugruppe Geländersegment |
|
1006 |
Lichter Pfostenabstand Wird der lichte Abstand zwischen zwei Pfosten als Einzelmaß bemaßt, dann wird die Pfostendicke nicht berücksichtigt. Die Bemaßung erfolgt in allen Feldern des Geländersegmentes. Sind die Maße dieser Regel in allen Feldern gleich, dann wird nur das Maß des ersten Feldes dargestellt. Beim Maßtyp Kettenmaß wird auch die Pfostendicke berücksichtigt. Sind die Maßketten aller Felder gleich, dann wird nur die Maßkette des ersten Feldes dargestellt. |
CLEARANCE_POST nur für Baugruppe Geländersegment Die Abbildung zeigt eine Treppe mit gleichen Abständen zwischen Pfosten und folgendem Füllstab sowie zwischen den Füllstäben. Die Füllstab- und die Pfostendicke sind identisch. Die Maße und Maßketten der Regeln 1006 bis 1009 sind hier für alle Felder gleich.
Das schräge Segment der abgebildeten Treppe hat individuelle Pfosten- und Füllstababstände sowie unterschiedliche Pfosten- und Füllstabdicken. Das beutet dass die Maße und Maßketten der Regeln 1006 bis 1009 nicht gleich sind.
|
|
1007 |
Achsabstand der Pfosten Der Achsabstand zweier Pfosten wird bemaßt und zwar in allen Feldern des Geländersegmentes. Sind die Maße dieser Regel in allen Feldern gleich, dann wird nur das Maß im ersten Feld dargestellt. |
CENTERDISTANCE_POST nur für Baugruppe Geländersegment |
|
1008 |
Lichter Füllstababstand Wird der lichte Abstand zweier Füllstäbe als Einzelmaß bemaßt, dann wird die Dicke des Füllstabes nicht berücksichtigt. Die Bemaßung erfolgt in allen Feldern des Geländersegmentes. Sind alle Maße dieser Regel gleich, dann wird nur das erste Maß des ersten Feldes dargestellt. Beim Maßtyp Kettenmaß wird auch die Füllstabdicke berücksichtigt. Sind die Maßketten aller Felder gleich, dann wird nur die Maßkette des ersten Feldes dargestellt. |
CLEARANCE_WEBMEMBER nur für Baugruppe Geländersegment |
|
1009 |
Achsabstand der Füllstäbe Diese Regel bemaßt die Achsabstände zwischen Pfosten- und Füllstäben als Maßkette. Die Bemaßung erfolgt für alle Felder des Geländersegmentes. Sind die Maßketten aller Felder gleich, dann wird die Maßkette nur für das erste Feld erstellt. |
CENTERDISTANCE_WEBMEMBER nur für Baugruppe Geländersegment |
|
1010 |
Handlaufüberstand |
HANDRAIL_PROJECTION nur für Baugruppe Geländersegment |
|
1011 |
Nebenteile |
RAILING_SUBPARTS nur für Baugruppe Geländersegment |
|
1012 |
Nebenteile der Pfostenbaugruppen |
POST_SUBPARTS nur für Baugruppe Geländersegment |
|
1013 |
Nebenteile der Füllungsbaugruppe |
FILLING_SUBPARTS nur für Baugruppe Geländersegment |
|
1014 |
Winkel Pfosten/Handlauf |
ANGLE_POST_HANDRAIL nur für Baugruppe Geländersegment |
|
1015 |
Bohrungen |
RAILING_BORES nur für Baugruppe Geländersegment |
Das schräge Segment der abgebildeten Treppe hat individuelle Pfosten- und Füllstababstände sowie unterschiedliche Pfosten- und Füllstabdicken. Das beutet dass die Maße und Maßketten der Regeln 1006 bis 1009 nicht gleich sind.
Abmessungen von Blechabwicklungen
|
Wert |
Erklärung |
Bezeichnung/ Rule Identifier |
|---|---|---|
|
3001 |
Abmessungen einer Blechabwicklung |
SIZE_DEV |
|
3002 |
Biegelinien einer Blechabwicklung |
BENDLINES_DEV |
|
3003 |
Kontur einer Blechabwicklung |
OUTLINE_DEV |
|
3004 |
Bohrungen einer Blechabwicklung auf der rechten Seite |
BORES_RIGHT_DEV |
|
3005 |
Bohrungen einer Blechabwicklung auf der linken Seite |
BORES_LEFT_DEV |
|
3006 |
Bohrungen einer Blechwicklung rechts und links |
BORES_RIGHTANDLEFT_DEV |
|
3007 |
Bohrungen einer Blechabwicklung oben |
BORES_ABOVE_DEV |
|
3008 |
Bohrungen einer Blechabwicklung unten |
BORES_BELOW_DEV |
|
3009 |
Bohrungen einer Blechabwicklung oben und unten |
BORES_ABOVEANDBELOW_DEV |
|
3010 |
Agraffen einer Blechabwicklung auf der rechten Seite |
AGRAFFES_RIGHT_DEV |
|
3011 |
Agraffen einer Blechabwicklung auf der linken Seite |
AGRAFFES_LEFT_DEV |
|
3012 |
Agraffen einer Blechabwicklung rechts und links |
AGRAFFES_RIGHTANDLEFT_DEV |
|
3013 |
Agraffen einer Blechabwicklung oben |
AGRAFFES_ABOVE_DEV |
|
3014 |
Agraffen einer Blechabwicklung unten |
AGRAFFES_BELOW_DEV |
|
3015 |
Agraffen einer Blechabwicklung oben und unten |
AGRAFFES_ABOVEANDBELOW_DEV |
|
3016 |
Agraffen in Blechabwicklung über Bemaßungspunkt bemaßen |
DIMPOINT_AGRAFES_DEV |
|
Beachten Sie:
|
Beispiel:
In der folgenden Abbildung sind Bemaßungsregeln für die Blechabwicklung gesetzt worden. In den Blechabwicklungsparametern der Zeichnungsableitung sind unter Bemaßung die Optionen Abmessung und Bearbeitungen aktiv, die Option Biegelinien ist nicht aktiv. Bei der Zeichnungsableitung wird dann die Regel 3002 nicht berücksichtigt.
Werkstatt- und Einzelteilzeichnung • Einstellungen für Werkstattzeichnungen • Werkstattzeichnung - Dialogfenster
