Thema: HiCAD Stahlbau

Beispiel - Variante einer ebenen Füllung

In diesem Beispiel soll eine ebene Füllung bestehend aus einem Blech und jeweils zwei angeschweißten Haltern links und rechts als Geländervariante erzeugt werden. Darüber hinaus wollen wir für diese Variante einen individuellen Benutzerdialog erstellen.

 

Bei einer ebenen Füllung sind mindestens die Variablen i_l und i_h erforderlich.

Wir beschränken uns in diesem Beispiel auf diese beiden Muss-Variablen, d. h. diese Komponente kann nur für ebene Geländer verwendet werden. (Ein Beispiel für Geländer mit Steigung finden Sie in den Mustervarianten).

 

Schritt 1: Erzeugen und Parametrisieren des Bleches

Das in unserem Beispiel verwendete Stahlbaublech soll aus einer Skizze abgeleitet werden.

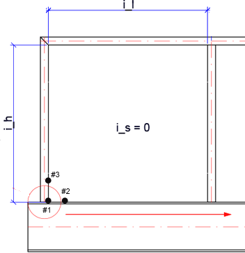
Variable Wofür Anfangswert
i_h Abstand zwischen Boden und Handlauf 700
i_l Abstand zwischen 2 Pfosten 800
abstand Breite der Halter 144
h_oben Abstand zu Handlauf 100
h_unten Abstand zum Boden 100

Für die Breite und Höhe des Bleches bedeutet dies:

Wir fixieren zunächst den isolierten Punkt (1) (Skizze > HCM > Geometrie fixieren). Er stellt den Nullpunkt dar. Dann ordnen wir der Skizze die Variablen zu, indem wir entsprechende HCM-Maßbedingungen vergeben (Skizze > HCM > Intelligente Bemaßung):

Anfangswert



 

Schritt 2: Baugruppe und Einbau-Koordinatenystem

Darüber hinaus muss die Baugruppe Fremdbezüge verwenden. Dazu klicken Sie erneut mit der rechten Maustaste in das Feature-Protokoll und aktivieren dort Fremdbezüge in Bearbeitungen verwenden.

Die Variablen pl[1] und pl[2] werden dann dem Feature des Bleches zugeordnet:

Das Einbau-Koordinatensystem wird in das Feature-Protokoll der Baugruppe eingetragen. (Die Punkte sind deckungsgleich mit den beim Erzeugen der Skizze verwendeten isolierten Punkten.)

 

Schritt 3: Einbau der Halter und Parametrisierung

Damit haben wir der Baugruppe alle erforderlichen Variablen und HCM-Bedingungen zugeordnet.

 

Schritt 4: Speichern der Baugruppe als Variante

Um die Baugruppe als Variante zu speichern, wählen Sie die Baugruppe aus und verwenden dann die Funktion Varianteneditor für Geländer im Andockfenster Bauwesenfunktionen unter Stahlbau > Treppen + Geländer > Geländer.

 

Zur Erstellung unseres Benutzerdialoges aktivieren wir die Checkbox Dialogeditor starten und verlassen dann das Fenster mit OK.

 

Im HiCAD-Ordner Kataloge\Werksnormen\Stahlbau\Gelaender\EbeneFuellung werden dann folgende Dateien angelegt:

Der HiCAD Dialogeditor wird automatisch gestartet und die CSV-Datei geladen. Damit kann der Benutzerdialog erstellt werden.

 

Weiter zur Erstellung des Benutzerdialoges.

Der Editor für GeländervariantenTreppen und Geländer (3D-STB)Stahlbau-Funktionen

© Copyright 1994-2021, ISD Software und Systeme GmbH
Version 2601 - HiCAD Stahlbau
Ausgabedatum: 26.09.2021     Sprache: 1031

> Feedback zu diesem Thema

DatenschutzAGBCookiesKontaktImpressum