Joint de poteau
Fenêtre d'ancrage Fonctions bâtiment > Enveloppes / Façades > Enveloppes de bâtiment 3D > Jonctions de profilé des Enveloppes de bâtiment > Joint de poteau
Dans la fenêtre d'ancrage Fonctions bâtiment (que vous pouvez déployer dans la partie droite de la fenêtre HiCAD), vous trouverez la sous-rubrique
Parmi elles, retrouvez le Joint de poteau (1314).
Grâce à cette variante de design, il est possible de relier deux profilés de série le long d'un axe de profilé. Cette connexion peut tout aussi bien se faire avec un boulonnage visible latéral, que par le haut avec un raccord à vis invisible de l'extérieur. Les éléments individuels du boulonnage peuvent alors être repositionnés ou bien insérés à une distance précise du joint. En outre, vous avez la possibilité de raccorder le profilé d'insertion seulement au profilé du poteau (ex: comme compensation pour la dilatation thermique).
Après avoir cliqué sur Joint de poteau (1314) dans la fenêtre Fonctions bâtiment, identifiez d'abord les deux profilés à relier.
Le dialogue d'insertion s'ouvre alors avec les divers onglets.
Favoris
Les paramètres du dialogue peuvent être enregistrés comme favoris pour être réutilisés à tout moment. Pour ce faire, cliquez sur le symbole
situé en bas à gauche de la fenêtre pour accéder au menu contextuel. Retrouvez davantage d'informations sur la gestion des favoris dans les Généralités HiCAD, dans la rubrique Favoris.
Jonction
En dessous de Jonction, vous pouvez choisir si la Fixation d'un connecteur de profilé doit être créée
- De dessus,
- Latéral avec vis des deux côtés ou
- Latéral avec boulonnage continu
En fonction du choix de Connecteur que vous aurez fait entre Tôle, Profilé creux ou bien Profilé de série, d'autres options vous seront présentées juste en dessous en fonction du premier choix, entre Tôle de connexion, Profilé creux ou bien Profilé de série.
Dans le cas d'une Tôle seule l'option de connexion latérale avec vis des deux côtés est disponible.
Profilé creux, Connecteur profilé, de dessus
Profilé creux, Connecteur profilé, latéral avec vis des deux côtés
Profilé creux, Connecteur profilé, latéral avec boulonnage continu
Dans l'onglet Jonction, en plus des profilés de série, vous pouvez sélectionner dans le catalogue
une autre tôle ou un profilé creux en un clic, mais également modifier le champ d'entrée de la Longueur ainsi que la Hauteur dans le cas d'une tôle. (Si vous sélectionnez un acier plat dans le catalogue, le champ de sélection Hauteur est omis car il est déjà spécifié pour la pièce).
Par rapport au Profilé de série, huit profilés d'insertions du système FW 50+ sont disponibles dans le catalogue.
Géométrie
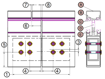
Dans l'onglet Géométrie , vous pouvez définir d'autres attributs pour la connexion. Dans le graphique de droite, vous voyez avec des chiffres et des lettres pour quelle géométrie une valeur correspondante peut être attribuée dans la boîte de dialogue (les chiffres et lettres sont indiqués ici entre parenthèses pour les rubriques correspondantes du menu).
- Dans la section Placement du connecteur le connecteur peut être créé Dessus, Dessous, ou bien Au milieu avec décalage par rapport au profilé (soit avec la valeur 0 en guise de Décalage dans le cas du choix Au milieu avec décalage. Auquel cas, la connexion sans décalage est établie précisément au milieu, dans la direction parallèle du poteau).
- Dans la section Joint, peuvent être définis, aussi bien pour le Décalageque l'Espace, la Coque de recouvrement, le Profilé de contact, le Joint d'étanchéité (l'espace entre les profilés du poteau et la coque de recouvrement peut être de tailles différentes), et l'Isolateur. Vous pouvez aussi définir l'Espace (Espace, profilé) entre les deux profilés.
- Si souhaité, la Fixation de connecteur peut être établie avec le 1er profilé uniquement plutôt qu'Avec deux profilés. De plus, il vous est possible ici de définir la Distance du joint et un Décalagepar rapport à la fixation.
- La section Grille de perçage vous permet de définir le Placement des Points de référence de grille/sur profilé pour le perçage. Vous avez le choix entre Horizontal et Vertical ainsi que Centre de grille. Vous pouvez également sélectionner une rangée de perçage (verticale, inférieure, horizontale, la première rangée du poteau). Le Point de référence sur profilé peut être établi sur l'Arête inférieure du profilé, ou dans le Centre de cavité (du profilé).
-
Vous pouvez définir le Nombre de trous pour la Grille X et la Grille Y (direction X et Y de la grille de la vue en plan des trous). En dessous, vous pouvez soit attribuer les distances entre les trous individuellement (le nombre correspondant de champs de saisie est affiché pour le Nombre de trous sélectionné) ou, si les distances sont identiques, saisir la valeur dans le champ Modifier tous avec lequel vous pourrez définir tous les trous dans une direction.
Fixation & Accessoire
Dans l'onglet Fixation, les Vis et Perçages de la connexion peuvent être modifiés sur le catalogue.
Dans Accessoire, vous pouvez ajouter, par un clic sur + d'autres matières pour la variante de design, ou après avoir sélectionné un accessoire, la supprimer de la liste par un clic sur -.
En quittant la fenêtre par OK, le joint de poteau est inséré sur la scène au niveau des deux profilés.
- Dans la fenêtre de graphique, les options modifiées sont affichées et appliquées pour vous guider.
Jonctions / Variantes de design pour les Enveloppes de bâtiment
