Créer de nouveaux éléments et variantes
Outre l'utilisation des éléments et des variantes prédéfinis par ISD, vous pouvez également créer
- de nouveaux éléments de Tuyauteries+Process et
- de nouvelles variantes d'éléments de Tuyauteries+Process.
Veuillez noter que pour la création de nouveaux éléments et de nouvelles variantes, certaines règles doivent être respectées, en fonction du type d'élément concerné.
|
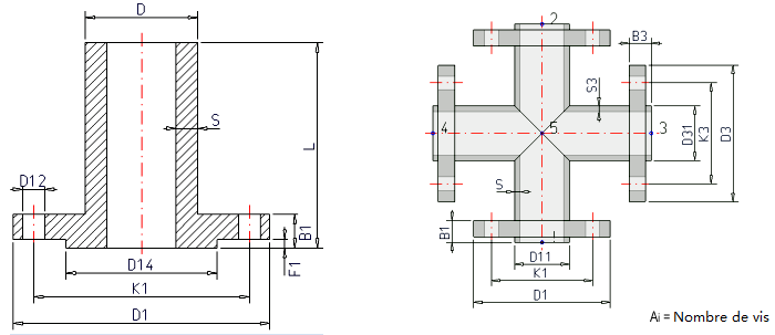
Vous pouvez utiliser les fonctions de boulonnage du module Tuyauteries+Process pour placer des boulonnages sur des jonctions à bride. Pour s'assurer que les boulons correspondent aux brides, les fonctions évalueront les variables de la variante d'élément à laquelle la bride appartient. Ceci doit également être pris en compte si vous construisez vos propres éléments/variantes avec des jonctions à bride, car sinon, des problèmes se produiront lors de leur modification par les fonctions de boulonnage. Le tableau suivant présente les listes de variables. La deuxième position de la désignation de la variable doit correspondre au numéro de jonction. La liste se réfère ici à l'exemple de la première jonction d'un élément.
Par conséquent, les variables de la deuxième jonction auront les désignations B2, C2, F2, A2, D22.
D'autres règles spécifiques aux éléments s'appliquent lors de l'évaluation :
La valeur des variables NI (n majuscule, i majuscule, et non "1" !) est utilisée comme attribut supplémentaire lors de la création ou de l'interrogation d'une fiche d'article dans HELiOS. Elle représente le diamètre nominal en pouces (inch). |
Vous retrouvez également les procédures et les règles de création d'éléments et de variantes dans le fichier PDF suivant.
Règles pour la création d'éléments personnalisés de Tuyauteries+Process (T+P) • Règles pour la création de variables personnalisées (T+P)
IMPORTANT - Veuillez noter ce qui suit lorsque vous travaillez avec des variantes personnalisées pour des brides ou des éléments avec des brides
