Exemple - Variante d'un remplissage planaire
Dans cet exemple, un remplissage planaire, composé d'une tôle et deux supports soudés de chaque côté, a été créé comme variante de garde-corps. Par ailleurs, nous voulons créer un dialogue utilisateur individuel pour cette variante.
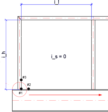
Pour un remplissage planaire, les variables i_l et i_h sont au minimum nécessaires.
- i_h
Distance entre sol et main courante. - i_l
Distance entre deux poteaux.
Nous nous limitons dans cet exemple aux deux variables obligatoires, c'est-à-dire que ce composant ne peut être utilisé que pour des remplissages plans (un exemple pour des garde-corps avec élévation se trouve dans les variantes modèles).
Étape 1 : Création et paramétrage de la tôle
La tôle de la charpente métallique utilisée dans notre exemple doit être dérivée d'une esquisse.
- Nous créons une nouvelle esquisse dans une vue de dessus et définissons tout d'abord comme aide pour le paramétrage à venir trois points isolés, et ce comme ceci :
- Absolu (0,0,0)
- Absolu (100,0,0) et
- Absolu (0,100,0).
- Nous activons (Esquisse > HCM > Outils > Paramètres) les contraintes de position automatiques Parallèle et Perpendiculaire et dessinons un rectangle comme ci-dessous.
- Maintenant, il nous faut paramétrer l'esquisse. Dans notre exemple, la tôle n'occupe pas la zone entière entre le poteau et le sol/la main courante, mais les supports doivent également être pris en compte. Par ailleurs, la distance de la tôle par rapport au sol ainsi que par rapport à la main courante doit être flexible. Nous voulons donc utiliser les variables suivantes :
Variable |
pour |
Valeur |
---|---|---|
i_h |
Distance entre sol et main courante |
700 |
i_l |
Distance entre 2 poteaux |
800 |
distance |
Largeur du support |
144 |
h_dessus |
Distance par rapport à la main courante |
100 |
h_dessous |
Distance par rapport au sol |
100 |
h_support |
Distance du support par rapport à l'arête supérieure et inférieure de la tôle |
100 |
Pour la largeur et la hauteur de la tôle, cela signifie ceci :
- Largeur de la tôle = i_l - (2*distance)
- Hauteur de la tôle = i_h-h_dessus-h_dessous
Nous fixons tout d'abord le point isolé (1) (Esquisse > HCM > Fixer la géométrie). Ce point représente l'origine. Puis nous attribuons les variables à l'esquisse en définissant les contraintes de cote HCM correspondantes (Esquisse > HCM > Cotation intelligente) :
Contrainte de cote pour |
Variable |
Valeur |
---|---|---|
Distance de l'arête gauche de l'esquisse par rapport au point (1) |
distance |
144 |
Distance de l'arête inférieure de l'esquisse par rapport au point (1) |
h_dessous |
100 |
Largeur de l'esquisse |
i_l - (2*distance) |
800 pour i_l |
Hauteur de l'esquisse |
i_h - h_dessous- h_dessus |
700 pour i_h 100 pour h_dessus |
- Nous convertissons maintenant l'esquisse en une tôle de charpente métallique par (Charpente métallique > Tôle, nouvelle > depuis esquisse) et choisissons d'effacer l'esquisse. Comme point d'insertion et d'appui, nous choisissons dans les deux cas l'origine (BDS).
Étape 2 : Ensemble et système de coordonnées d'insertion
- Nous créons un nouvel ensemble (Standard 3D > Nouveau > Ensemb.) et déplaçons la tôle créée auparavant par glisser-déposer (drag&drop) dans l'ICN dans l'Ensemble.
-
Tous les ensembles n'ont pas automatiquement un historique de Feature. Si vous attribuez à cet ensemble un système de coordonnées d'insertion, aucune entrée de Feature correspondante ne sera créée. Celle-ci est cependant absolument nécessaire pour les variantes. Nous attribuons donc à l'ensemble un Feature de création de corps. Pour effectuons cela par un clic droit dans la fenêtre de Feature de l'ensemble et sélectionnons la fonction Activer le Feature dans le menu contextuel.
Par ailleurs, l'ensemble doit utiliser des Références extérieures. Pour cela, vérifions que pour cet historique de Feature l'icône Utiliser des références extérieures est bien activée.
- Les variables sont pour le moment attribuées à la tôle. Nous activons donc la tôle, effectuons un clic droit dessus et la fonction Propriétés ... > Variables d'élément. Nous sélectionnons ici toutes les variables, effectuons dans la liste de la sélection un clic droit et sélectionnons Couper. Nous activons alors l'ensemble, lançons à nouveau la fonction Variables d'élément et insérons ici les variables avec
. Les variables sont maintenant attribuées à l'ensemble.
- Lors de la dérivation de la tôle de charpente métallique, nous avions sélectionné une tôle en particulier du catalogue des produits semi-finis. Mais lorsque vous choisissez le composant du garde-corps dans le configurateur de garde-corps, la tôle ne doit pas être une plaque de tôle fixe et invariable, mais une plaque de tôle qui peut être choisie librement dans des tableaux particuliers. Par conséquent, vous aurez besoin d'une variable du type Liste pour le produit semi-fini.
Les variables pl[1] et pl[2] seront alors attribuées au Feature de la tôle :
- Nous définissons maintenant le système de coordonnées d'insertion (SCI) au moyen de la fonction Scène > Divers > SC universel > Définir le CS d'insertion de la façon suivante (l'ensemble doit être actif !) :
- Point 1 dans l'absolu (0,0,0)
- Point 2 dans l'absolu (100,0,0) et
- Point 3 dans l'absolu (0,100,0).
Le système de coordonnées d'insertion est inscrit dans l'historique de Feature de l'ensemble (les points concordent avec les points isolés utilisés lors de la création de l'esquisse).
Étape 3 : Insertion du support et paramétrage
- Nous allons maintenant construire le support. Nous passons pour cela dans une vue de dessus et nous insérons quatre supports de type Acier rond DIN EN 10060-10, pour lesquels nous utilisons les options d'insertion comme illustrées ci-dessous (la longueur n'a pour le moment aucune importance). Par la suite, nous subordonnons les supports par glisser-déposer (drag&drop) dans l'ICN de l'ensemble.
- Les supports doivent être aussi larges que la distance entre le poteau et la tôle (Variable distance). Nous changeons donc dans l'historique de Feature des supports la longueur totale et y indiquons la variable distance. Cette étape doit être effectuée pour les quatre supports.
- Les supports doivent posséder de leur côté supérieur et inférieur une distance en particulier. Celle-ci doit être variable. Nous leur attribuons donc les contraintes de distance correspondantes (Standard 3D > HCM > Distance), et ce toujours entre le point d'extrémité de l'axe et le côté supérieur ou inférieur de la tôle. Comme variable, nous choisissons ici h_support. Cette étape doit être répétée pour les quatre supports et l'ensemble doit être actif ! La modélisation HCM de l'ensemble contient enfin quatre contraintes de distance.
- Nous fixons la tôle à l'aide de la fonction Standard 3D > HCM > Fixer le sous-élément.
- Les supports doivent exactement être en contact avec la surface latérale de la tôle. Nous obtenons cela par l'attribution de contraintes HCM de concomitance de position (Standard 3D > HCM > Concom.), et ce toujours entre la surface latérale de la tôle et la surface de la base de l'acier rond correspondant. Ici encore, l'ensemble doit être actif.
- Pa ailleurs, les supports doivent être orientés verticalement au centre de la surface latérale de la tôle. Cela veut dire donc que nous avons besoin encore pour chaque support des contraintes HCM correspondantes, dans notre cas, une contrainte de concomitance de type Point médian (Standard 3D > HCM > Concom. > Point médian), et ce toujours entre le point d'extrémité de l'axe du support et le point initial/final des arêtes de la tôle.
Avec cela, nous avons attribué à l'ensemble toutes les variables et les contraintes HCM nécessaires.
- Nous modifions encore le nom de l'élément (dans les propriétés de l'ICN) et le Numéro ID (Attributs d'élément) de l'ensemble en Ex_Remplissage.
Étape 4 : Enregistrement de l'ensemble comme variante
Pour sauvegarder l'ensemble comme variante, sélectionnez l'ensemble et recourez à la fonction Éditeur de variantes pour garde-corps dans la fenêtre d'ancrage Fonctions bâtiment sous Charpente métallique > Escaliers+Garde-corps > Garde-corps.
Pour créer notre dialogue utilisateur, nous activons la case Démarrer l'Éditeur de dialogue et nous quittons la fenêtre par OK.
Dans le dossier HiCAD Kataloge\Werksnormen\Stahlbau\Gelaender\EbeneFuellung, les fichiers suivants seront alors stockés :
- Ex_Remplissage.CSV et
- Ex_Remplissage.KRA
L'Éditeur de dialogue HiCAD démarre automatiquement et le fichier CSV est chargé. Le dialogue utilisateur peut ainsi être créé.
Continuer à la Création du dialogue utilisateur.
Éditeur pour variantes de garde-corps • Escaliers et garde-corps (CM 3D) • Fonctions de la Charpente métallique