Joint de poteau

Fenêtre d'ancrage Fonctions bâtiment > Enveloppes / Façades > Enveloppes de bâtiment 3D > Jonctions de profilé des Enveloppes de bâtiment > Joint de poteau

Dans la fenêtre d'ancrage Fonctions bâtiment (que vous pouvez déployer dans la partie droite de la fenêtre HiCAD), vous trouverez la sous-rubrique Enveloppes / Façades. De là, vous trouverez toutes les variantes de design disponibles pour les enveloppes de bâtiment, les murs rideaux et les façades légères.

Parmi elles, retrouvez le Joint de poteau (1314).

Grâce à cette variante de design, il est possible de relier deux profilés de série le long d'un axe de profilé. Cette connexion peut tout aussi bien se faire avec un boulonnage visible latéral, que par le haut avec un raccord à vis invisible de l'extérieur. Les éléments individuels du boulonnage peuvent alors être repositionnés ou bien insérés à une distance précise du joint. En outre, vous avez la possibilité de raccorder le profilé d'insertion seulement au profilé du poteau (ex: comme compensation pour la dilatation thermique).

Après avoir cliqué sur Joint de poteau (1314) dans la fenêtre Fonctions bâtiment, identifiez d'abord les deux profilés à relier.

Le dialogue d'insertion s'ouvre alors avec les divers onglets.

 

Favoris
Les paramètres du dialogue peuvent être enregistrés comme favoris pour être réutilisés à tout moment. Pour ce faire, cliquez sur le symbole situé en bas à gauche de la fenêtre pour accéder au menu contextuel. Retrouvez davantage d'informations sur la gestion des favoris dans les Généralités HiCAD, dans la rubrique Favoris.


Jonction

En dessous de Jonction, vous pouvez choisir si la Fixation d'un connecteur de profilé doit être créée

En fonction du choix de Connecteur que vous aurez fait entre Tôle, Profilé creux ou bien Profilé de série, d'autres options vous seront présentées juste en dessous en fonction du premier choix, entre Tôle de connexion, Profilé creux ou bien Profilé de série.

Dans le cas d'une Tôle seule l'option de connexion latérale avec vis des deux côtés est disponible.

Dans l'onglet Jonction, en plus des profilés de série, vous pouvez sélectionner dans le catalogue une autre tôle ou un profilé creux en un clic, mais également modifier le champ d'entrée de la Longueur ainsi que la Hauteur dans le cas d'une tôle. (Si vous sélectionnez un acier plat dans le catalogue, le champ de sélection Hauteur est omis car il est déjà spécifié pour la pièce).

Par rapport au Profilé de série, huit profilés d'insertions du système FW 50+ sont disponibles dans le catalogue.


Géométrie

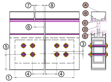
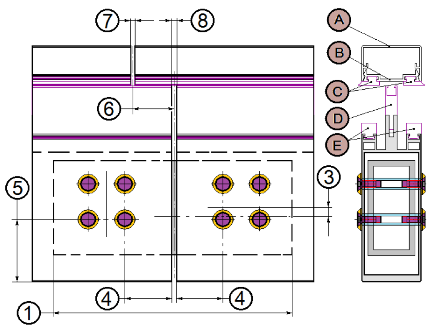
Dans l'onglet Géométrie , vous pouvez définir d'autres attributs pour la connexion. Dans le graphique de droite, vous voyez avec des chiffres et des lettres pour quelle géométrie une valeur correspondante peut être attribuée dans la boîte de dialogue (les chiffres et lettres sont indiqués ici entre parenthèses pour les rubriques correspondantes du menu).


Fixation & Accessoire

Dans l'onglet Fixation, les Vis et Perçages de la connexion peuvent être modifiés sur le catalogue.

Dans Accessoire, vous pouvez ajouter, par un clic sur + d'autres matières pour la variante de design, ou après avoir sélectionné un accessoire, la supprimer de la liste par un clic sur -.

En quittant la fenêtre par OK, le joint de poteau est inséré sur la scène au niveau des deux profilés.


Remarques :

Jonctions / Variantes de design pour les Enveloppes de bâtiment