Example 1 - Step 8: Bills of Materials
To create a Bill of Materials for the example drawing shown in Step 7, choose Drawing Management > Production > BOM
. In the BOM dialogue window, specify the desired output options.
The selection of the configuration decides whether the previous Report Manager or the new comfortable ISD Report Manager opens for further editing.
- The old Report Manager uses files with the file name extension RMS for the configuration.
- The new ISD Report Manager from version 2023 onwards uses configuration files with the file name extension RM_SETTINGS.
Click the OKbutton to start the BOM generation.
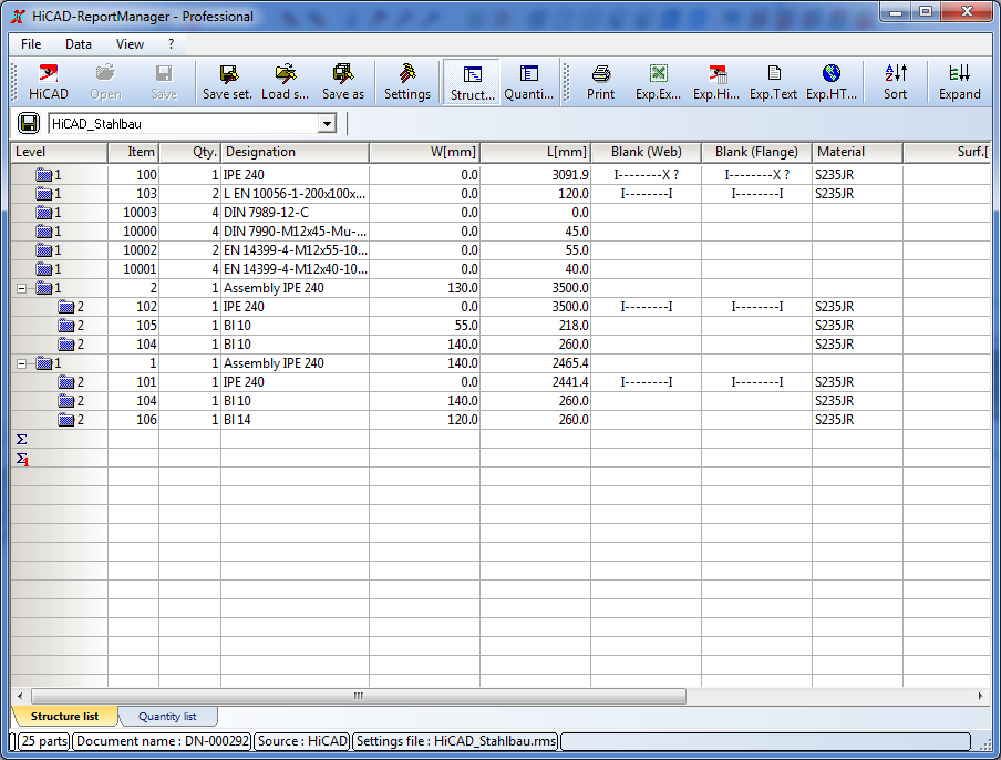
Structure list in the old Report Manager
Step 7: Change Released Drawings
For the creation/ management of the production data please also see Example 3.
Requirements for a Smooth Operation (DrwMan) • Pre-planning of the Construction Process (DrwMan) • Overview of functions (DrwMan)
