:D

 

Dimensioning Rules - Overview

Dimensioning rules can be divided into different groups:

In the Dimensioning Rule Editor the dimensioning rules can be filtered by these groups.

 

Please also note the information in Notes on dimensioning rules section.


System dimensions

Value

Description

Designation / Rule Identifier

Length between system axes


Dimensions of assemblies

Value

Description

Designation / Rule Identifier

Assembly length

Diagonal total dimensions of an assembly


Dimensions of beams


Position of beam sub-parts

Value

Description

Designation / Rule Identifier

Sub-system, Upper beam side

Sub-system, Web surface of beam

Sub-system, Lower beam side

Attached plates on top side of beam, via bores or outer contour

Attached plates on bottom side of beam, via bores or outer contour

Attached plates on web surface, in front of web, via bores or outer contour

Attached plates on web surface, behind web, via bores or outer contour

Attached beams/profiles with axis, to main part axis, dimension via system axis

Bores in sub-parts (bores of all sub-parts) incl. bores + viewing direction

All parts via bore

Beam sub-parts, not vertical to main part axis

Beam sub-parts on lower flange, not vertical to main part axis

Beam sub-parts in front of web, not vertical to main part axis

Beam sub-parts behind web, not vertical to main part axis

Beam sub-parts, not vertical to main part axis

Attached parts via bores (also perpendicular to view) or outer contours, located before the axis of the main part

ATTACHING_PARTS_VERT_BEFORE_AXIS

Attached parts via bores (also perpendicular to view) or outer contours, located behind the axis of the main part

Attached parts via bores (also perpendicular to view) or outer contours, located above the axis of the main part

ATTACHING_PARTS_VERT_ABOVE_AXIS

Attached parts via bores (also perpendicular to view) or outer contours, located below the axis of the main part

ATTACHING_PARTS_VERT_BELOW_AXIS

150

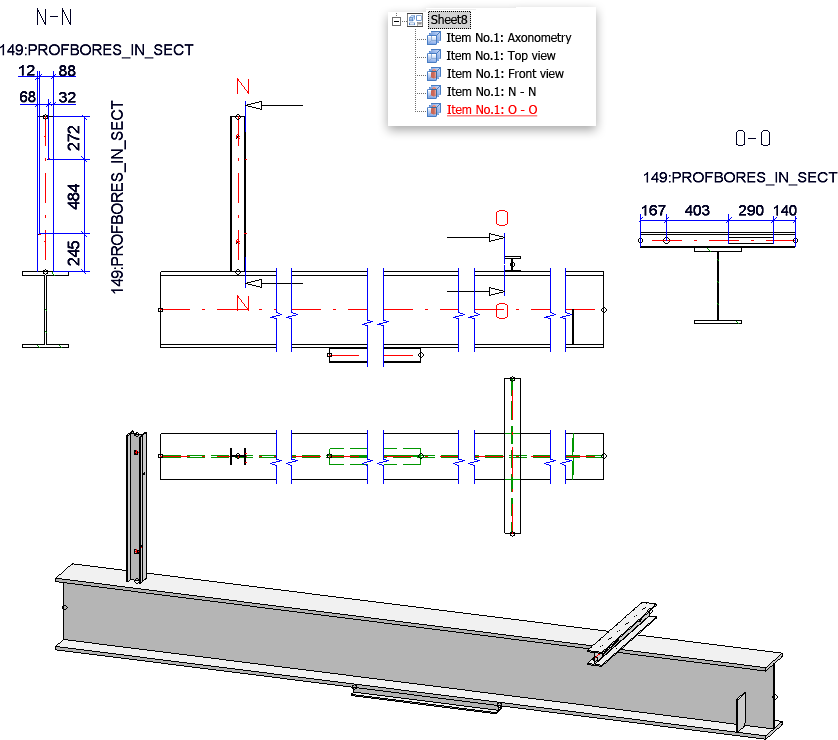
Position of beam sub-part in sectional views

PROF_POSITION_IN_SECT

*see Dimensioning Rules - Overview


Processing of beams

Value

Description

Designation / Rule Identifier

Bores in upper flange of beam, separated by position with regard to beam axis

Bores in lower flange of beam, separated by position with regard to beam axis

Bores in web of beam, separated by position with regard to beam axis

Rules 151, 152 and 153 only apply for dimensioning parallel to the beam axis, since other separation mechanisms exist for dimensionings perpendicular to the beam axis. Only bores that are located in the view plane will be considered.

If Position of dimension chain: Automatic has been selected, the chains will be pulled out upwards or downwards, depending on the position of bores.


Dimensions of plates

Value

Description

Designation / Rule Identifier

Sheet/plate length

Sheet/plate width

Sheet/plate thickness

Width of sheets/plates (sub-parts) in sectioanl views


Processing of plates

Value

Description

Designation / Rule Identifier

Bores in sheets/plates, right side

Bores in sheets/plates, left side

Bores in sheets/plates, right or left side

Bores in sheets/plates, upper half

Bores in sheets/plates, lower half

Bores in sheets/plates, upper or lower half

Outer contour of sheet/plate, right side

Outer contour of sheet/plate, left side

Outer contour of sheet/plate, right or left side

Outer contour of sheet/plate, upper half

Outer contour of sheet/plate, lower half

Outer contour of sheet/plate, upper or lower half

Outer contour of sheets/plates, right and left side, in sectional views

Fillet radii on outer contours of sheets/plates

Fillet radii on material subtractions on sheets/plates

Fillet radii on material subtractions on sheets/plates in sectional views

Diagonal sheet/plate cuts


Bore diameters in bores and plates

Value

Description

Designation / Rule Identifier

Diameter of simple bores in main part

Diameter of standard part bores in main part

Diameter of boltings in main part

Diameter of standard part bores in sheets/plates (sub-parts) in sectional views

Diameters of boltings in sheets/plates (sub-parts) in sectional views


Position of assembly sub-parts relative to each other

Value

Description

Designation / Rule Identifier

Connected sub-part beams on relevant beams

Attached Sheet Metal parts with bores on relevant beam sub-parts

Attached plates/sheets on relevant beam sub-parts; one dimension chain for each plate/sheet

ATTACHING_SHEETS_SEPERATELY_RELVPROFS

Attached plates/sheets on upper beam sides on relevant beam sub-parts; via bores or outer contour

ATTACHING_SHEET_UPPERSIDE_RELVPROFS

Attached plates/sheets on lower beam sides on relevant beam sub-parts; via bores or outer contour

ATTACHING_SHEET_LOWERSIDE_RELVPROFS

Attached plates/sheets on web surface on relevant beam sub-parts, before web, via bores or outer contour

ATTACHING_SHEET_BEFORE_WEB_RELVPROFS

Attached plates/sheets on web surface on relevant beam sub-parts, after web, via bores or outer contour

ATTACHING_SHEET_BEHIND_WEB_RELVPROFS

Angle between relevant beams and connected sub-part beams

*see Notes on the dimensioning rules


Processing of assembly sub-parts

Value

Description

Designation / Rule Identifier

Bores in upper flange of relevant beam sub-parts

Bores in lower flanges of relevant beam sub-parts

Bores in flanges of relevant beam sub-parts


Sheet metal

Value

Description

Designation / Rule Identifier

SHEETMETAL_LENGTH

SHEETMETAL_WIDTH

Sheet height

SHEETMETAL_HEIGHT

Parametric linear dimensions of sheets

Parametric angular dimensions of sheets

Parametric circular dimensions of sheets

Flange length of sheets in sectional views

Opening angles of bend zones of sheets

157

Processings in sheets

SHEETMETALBORES
158 Processings in sheets incl. processings perpendicular to view SHEETMETALBORES_VERT
159 Outer contours of sheets SHEETMETALOUTLINE
160 Processings in sheets, dimension chains separated according to flanges SHEETMETALBORES_SEPERATED
161 Processings in sheets incl. processings perpendicular to view, dimension chains separated according to flanges SHEETMETALBORES_VERT_SEPERATED
162 Outer contours of sheets, dimension chains separated according to flanges SHEETMETALOUTLINE_SEPERATED
 

Rules 157-162:

The sheet with its flanges and bending zones is treated as one main part. The prerequisite for these dimensioning rules is that an appropriate coordinate system has been defined with the functions via Alignment of derived drawingsin the context menu for 3-D parts.

Recommended settings for Rule 157-162

The following picture shows a sheet metal with different bores. For the alignment of derived drawings the top view has been placed in the flange surface (1). (2) shows the front view of the drawing derivation and (3) the top view. The configuration DEFAULT (SHEETMETAL) has been used as template - enhanced by rule 157, 158 und 161.


Stair railing

 

Value

Description

Designation / Rule Identifier

Total height of Railing segment assembly

Total length of Railing segment assembly w/o base plates

Total height of Railing segment assembly w/o base plates

Total dimension of Railing segment assembly

Clear distances between posts

If the clear distance between two posts is dimensioned as individual dimension, the post thickness will not be considered. The dimensioning takes places in all fields of the railing segments. If the dimensions of the rule are not equal in all fields, only the dimension of the first field will be depicted.

In dimension type Chain of dimensions the post thickness will be taken into consideration, too. If the chain of dimensions of all fields is equal, only the chain of dimensions of the first field will be depicted.

Distances between post axes

The axis distance of two posts is dimensioned in all fields of the railing segment. If the dimensions of this rule are equal in each field, only the dimension of the first field will be depicted.

Clear distances between rods

If the clear distance between two posts is dimensioned as Individual dimension, the post thickness will not be considered. The dimensioning takes places in all fields of the railing segments. If the dimensions of the rule are not equal in all fields, only the dimension of the first field will be depicted.

Recommended setting for rule 1008

In dimension type Chain of dimensions the post thickness will be taken into consideration, too. If the chain of dimensions of all fields is equal, only the chain of dimensions of the first field will be depicted.

Distances between rod axes

This rule dimensions the axis distance between posts and vertical rods as chain of dimensions. The dimensioning takes place in all fields of the railing segment. If the dimensions of the rule are not equal in all fields, only the dimension of the first field will be created.

 

Hand rail excess length

Sub-parts, Post assembly

Sub-parts, Infill assembly

Angle Post - Handrail

Example 2:

The oblique segment of the depicted staircase has individual distances for posts and vertical rods as well as different post and vertical rod thickness. Hence, dimension and chain of dimensions of rules 1006 to 1009 are not equal.


Notes on dimensioning rules

Base points on hidden sub-parts

In the file STW_DIMSETTINGS.XML you can specify how base points on hidden parts are to be handled when using dimensioning rules. To do this, enter the following string into the file:

</PARAM><PARAM Name="IGNOREHIDDENSUBPARTANDBORES" Typ="INT" Value="0">

If Value has been set to 1, base points that are located on hidden sub-parts will not be considered for dimensioning in all dimensioning rules.

 

Attached sheet/plate parts or plates and beams bordering on relevant beams*

When dimensioning attached sheet/plate parts or plates and beams that border on dimensionally relevant beams, both contact points will always be dimensioned. If only the first contact point in the chain is to be dimensioned, open the STW_DimSettings.XML (conventional dimensioning settings) file in the HiCAD sys directory and set the parameter

</PARAM><PARAM Name="SUBPARTPOSITION" Typ="INT" Value="0">

to 1.

This setting affects all dimensioning rules marked with an asterisk *.

 

Example - (1) without change of the STW_DimSettings.XML , (2) with change of the STW_DimSettings.XML

 

Separate chain dimensions for different usages

You have the option to create separate chain dimensions per different usage for chain dimensions describing the fitting situation of parts. To change this behaviour, open the STW_DimSettings.XML (conventional dimensioning settings) file in the HiCAD sys directory and set the parameter SEPERATEDSUBPARTPOSITION to 1:

</PARAM><PARAM Name="SEPERATEDSUBPARTPOSITION" Typ="INT" Value="1">

The image below shows a beam with 4 plates for different usages (1=Front plate, 2=Reinforcement plate, (3) Stiffener) and the front view of the production drawing.

If the STW_DimSettings.XML file does not contain the described parameters, you can also make manual entries as described above.

 

Separate dimension chains for bores and subtractions

In the Dimensioning Settings it is now possible to determine under Bores/Boltings that separate chains of dimensions should be created for bores (through holes and standard bores) and subtractions. For this purpose there is the Separate dimension chains for bores and subtractions checkbox.

For new installations or when the dimensioning settings file STW_DIMSETTINGS.xml is not yet available, the stab3par.dat option can be switched on and off under

Maßketten für Lage der Bohrungen/Ausnehmungen trennen nach Bohrungen und Ausnehmungen 1:ja, 0:nein

If the STW_DIMSETTINGS.xml file is available, the line

</PARAM><PARAM Name="DEVIDEBORESANDCUTS" Typ="INT" Value="1">

has to be added.

This settings will not yet be saved in the workshop drawing at this point!

 

Please note that this setting also affects the following dimensioning rules:

Bores in upper and lower flange of beam

Bores in sheets/plates, right or left side

Bores in sheets/plates, upper or lower half

Outer contour of sheets/plates, right and left side, in sectional views

Beam processing in web, incl. processings in side view

Beam processings in upper and lower flange, incl. processings in side view

Bores in flanges of relevant beam sub-parts

 

Example - Separate chains of dimensions for bores and subtractions

The depicted drawing (1) contains several through holes bores and one rectangular subtraction. (2) separate chains of dimension, (3) one chain of dimensions for bores and subtractions

In the example the following settings for dimensioning rule 12 have been used for (3):

 

Separate dimensions according to part type for position of sub-parts

In the Dimensioning Settings it is now possible to determine under General that attached parts (beams) will be dimensioned according to the Part type attribute in the different chains of dimensions. A respective checkbox is available in the dialogue window. In this way it is possible to dimension hollow profiles / attached parts separately from round steel / attached part, thus improving the dimension structure.

This setting affects dimensioning rules for chains of dimensioning of relevant parts.

For new installations or when the dimensioning settings file STW_DIMSETTINGS.xml is not yet available, the stab3par.dat option can be switched on and off under

Separated chain dimensions according to part type for position of sub-parts 1:yes, 0:no - Getrennte Massketten nach Teileart fuer Einbausituation von Nebenteilen 1:ja, 0:nein

If the STW_DIMSETTINGS.xml file is available, the line

</PARAM><PARAM Name="SEPERATEDSUBPARTPOSITION_PT" Typ="INT" Value="0">

has to be added.

Drawing DerivationDerived Drawings: SettingsDrawing Derivation: Dialogue Window