Project: Steel Engineering Drawing Management (BIM-PDM)
The drawings from our example have been released. Let us assume that you now want to insert two bores into the middle beam that is currently locked against further processing.
If you now try to process the beam, the following message will be displayed:
Instead, proceed as follows:
.
and then
Save.
function. The workshop, detail and mounting drawings which are not up to date will be listed:
Mark the items and select OK. Confirm the security prompt with Yes.
The drawings will then be updated and will be marked with In progress in the title block again.
Please also note:
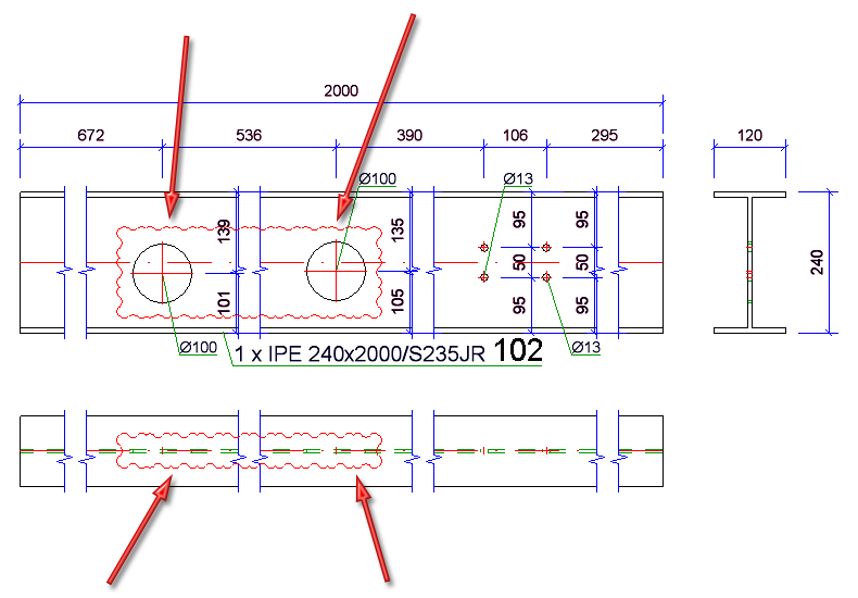
As you chose the setting Create revision clouds: In front view and top view, the changes in the workshop drawing will be marked by revision clouds: 
> Release (for mounting drawings).
Tip:
When deleting parts, proceed likewise, i.e. delete the part, itemize and save the model drawing and update the drawings. Finally, clean up the project to remove the invalid article masters.
Voraussetzungen für ein reibungsloses Arbeiten (ManBIM) • Vorplanung des Konstruktionsverlaufes (Verw. + BIM) • Overview of functions (ManBIM)
|
© Copyright 1994-2019, ISD Software und Systeme GmbH |