Civil Engineering Functions: Mullion-Transom Connection (3-D ME)

In the Civil Engineering functions docking window (on the right hand side of the HiCAD window) you can select the entry Metal Engineering / Facade Engineering > 3-D Metal Engineering > Metal Engineering beam/profile connections.

This sub-entry contains, among other design variants, a pre-defined Mullion-Transom connection, which is in fact a versatile 3-D Metal Engineering Schüco FW50/60 connection .

After selecting the connection, you first need to click the profile that you want to connect, and then the target profile to which you want to connect the first profile.

The dialogue window opens, enabling you to define your exact configuration.

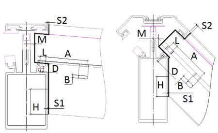
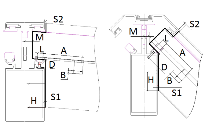
In the Geometry area, you can specify values for the distance lengths, which are identified by corresponding letters in the graphics window on the right hand side of the dialogue.

S1

Defines the clearance between mullions and transoms

S2

Defines the clearance between the cover strips

M

Defines the clearance between mullion axis and transom insertion depth (start)

B

Width of slot in transom

L

Length of slot in transom

D

Diameter of bore in mullion (for

If you want to Create additional bores , activate the corresponding checkbox. The dialogue will then be expanded accordingly:

In the areas Grid X and Grid Y (X- and Y-direction of the grid in top view of the bores) you can specify the Number of bores.

In the input field below you can assign the distances between the bores either individually (the corresponding number of input fields will be displayed for the previously selected number of bores), or, in case of identical distances, use the Change all field to set all bores at once.

In the Calculation method field you can select between option 1 and 2: If you choose procedure 1, the sketch edge runs parallel to the axis of the part, if you choose procedure 2, the sketch edge runs vertical to the part, as can be seen in the screenshot below:

The Accessories list at the bottom of the dialogue shows which parts and processings that are not displayed in the drawing belong in the BOM of the part. To add further parts, click +, and then click to select the desired parts from the cataogue. Use the "Minus" sign to remove parts from the list.

At in the Configuration area the top of the window you can save a configuration for a later reuse, or load an already existing configuration.

 

Please note:

Related Topics

Civil Engineering Functions: Metal Engineering / Facade Engineering

 

Version 2102 - HiCAD Metal Engineering | Date: 15/11/2016 | © Copyright 1994-2016, ISD Software und Systeme GmbH

Feedback on this topic