Bemaßungsregeln - Übersicht

Bemaßungsregeln lassen sich in mehrere Gruppen unterteilen:

Im Editor für Bemaßungsregeln lassen sich die Regeln nach diesen Gruppen filtern.

 

Bitte beachten Sie auch die Hinweise im Abschnitt Hinweise zu Bemaßungsregeln und -einstellungen.


Systemmaße

Wert

Erklärung

Bezeichnung/ Rule Identifier


Abmessungen von Baugruppen

Wert

Erklärung

Bezeichnung/ Rule Identifier


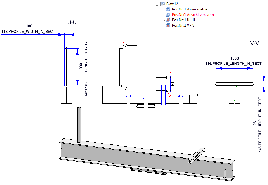
Abmessungen von Profilen

Wert

Erklärung

Bezeichnung/ Rule Identifier

147

148


Lage von Nebenteilen von Profilen

Wert

Erklärung

Bezeichnung/ Rule Identifier

Oben und unten bezieht sich auf das Koordinatensystem des Bleches bezieht und nicht auf das des Profils.

ATTACHING_PARTS_VERT_BEFORE_AXIS

ATTACHING_PARTS_VERT_BEHIND_AXIS

ATTACHING_PARTS_VERT_ABOVE_AXIS

ATTACHING_PARTS_VERT_BELOW_AXIS

* siehe Hinweise zu Bemaßungsregeln


Bearbeitungen von Profilen

Wert

Erklärung

Bezeichnung/ Rule Identifier

PROFBORES_BEFORE_AXIS

Die Regeln 142- 145 erzeugen separate Maßketten je nach Lage der Bearbeitung bezogen auf die Profilachse. Sollen senkrechte Bemaßungen je nach Lage der Bearbeitung bezogen auf die Profilmitte nach links bzw. rechts herausgezogen werden, dann lässt sich dies durch Auswahl von Lage: Automatisch erreichen.

PROFBORES_BEHIND_AXIS

PROFBORES_ABOVE_AXIS

PROFBORES_BELOW_AXIS

Profilbohrbearbeitungen im Oberflansch, getrennt nach Lage bzgl. der Profilachse

Profilbohrbearbeitungen im Unterflansch, getrennt nach Lage bzgl. der Profilachse

Profilbohrbearbeitungen im Steg, getrennt nach Lage bzgl. der Profilachse

Die Regeln 151, 152 und 153 gelten nur für Bemaßungen parallel zur Profilachse, da es senkrecht zur Profilachse noch andere Trennungsmechanismen gibt. Es werden nur Bohrungen, die in der Ansichtsebene liegen, berücksichtigt.

Wird als Lage automatisch gewählt, werden die Maßketten entsprechend der Lage der Bohrungen nach oben oder unten heraus gezogen.


Abmessungen von Blechen

Wert

Erklärung

Bezeichnung/ Rule Identifier


Bearbeitungen von Blechen

Wert

Erklärung

Bezeichnung/ Rule Identifier


Bohrungsdurchmesser in Profilen oder Blechen

Wert

Erklärung

Bezeichnung/ Rule Identifier


Lage von Nebenteilen einer Baugruppe zueinander

Wert

Erklärung

Bezeichnung/ Rule Identifier

105 Blech-Anbauteile an maßgebenden Profilnebenteilen, eine Maßkette für jedes Blech

ATTACHING_SHEETS_SEPERATELY_RELVPROFS

106 Blech-Anbauteile Profiloberseite an maßgebenden Profilnebenteilen, über Bohrungen oder Außenkontur

ATTACHING_SHEET_UPPERSIDE_RELVPROFS

107

Blech-Anbauteile Profilunterseite an maßgebenden Profilnebenteilen, über Bohrungen oder Außenkontur

ATTACHING_SHEET_LOWERSIDE_RELVPROFS

108

Blech-Anbauteile Stegfläche an maßgebenden Profilnebenteilen, vor dem Steg, über Bohrungen oder Außenkontur

ATTACHING_SHEET_BEFORE_WEB_RELVPROFS

109

Blech-Anbauteile Stegfläche an maßgebenden Profilnebenteilen, hinter dem Steg, über Bohrungen oder Außenkontur

ATTACHING_SHEET_BEHIND_WEB_RELVPROFS

* siehe Hinweise zu Bemaßungsregeln


Bearbeitungen von Nebenteilen einer Baugruppe

Wert

Erklärung

Bezeichnung/ Rule Identifier


Kantbleche

Wert

Erklärung

Bezeichnung/ Rule Identifier

SHEETMETAL_LENGTH
SHEETMETAL_WIDTH

Kantblechhöhe

SHEETMETAL_HEIGHT

SHEETMETAL_FLANGE_INSECT

 

Beachten Sie:

Beim Bemaßen der Laschenlänge eines Kantblechs in der Schnittansicht wird folgender Fußpunkt bemaßt:

  • bei einem Winkel zwischen den Laschen > 90 Grad der theoretische Schnittpunkt der Laschenkanten und
  • bei einem Winkel zwischen den Laschen < oder gleich 90 Grad der Tangentialpunkt an der Biegezonenkante.

Die nachfolgende Abbildung zeigt ein Beispiel. Die Lasche (1) hat einen Winkel von 45° zur nächsten Lasche, die Lasche (2) hat einen Winkel von 95° zur nächsten Lasche. In der Schnittansicht wird für Lasche (1) der Tangentialpunkt und für Lasche (2) der theoretische Schnittpunkt als Fußpunkt bemaßt.

SHEETMETAL_BENDINGANGLE_INSECT

SHEETMETALBORES

SHEETMETALBORES_VERT

159

SHEETMETALOUTLINE

160

SHEETMETALBORES_SEPERATED

161

SHEETMETALBORES_VERT_SEPERATED

SHEETMETALOUTLINE_SEPERATED

 

Zu den Regeln 157 bis 162:

Das Kantblech wird mit seinen Laschen und Biegezonen als ein Hauptteil behandelt. Bitte sorgen Sie für ein sinnvolles Koordinatensystem der Teile, indem Sie die Funktionen unter Ausrichtung abgeleiteter Zeichnungen im Kontextmenü für 3D-Teile verwenden.

 

Die folgende Abbildung zeigt ein Kantblech mit verschiedenen Bohrungen. Zur Ausrichtung abgeleiteter Zeichnungen wurde die Draufsicht wie abgebildet in die Laschenfläche(1) gelegt. (2) zeigt die Vorderansicht der Zeichnungsableitung, (3) die Draufsicht. Als Vorlage wurde die Konfiguration DEFAULT(KANTBLECHE) verwendet - erweitert um die Regeln 157, 158 und 161.

 


Treppengeländer

 

Wert

Erklärung

Bezeichnung/ Rule Identifier

Wird der lichte Abstand zwischen zwei Pfosten als Einzelmaß bemaßt, dann wird die Pfostendicke nicht berücksichtigt. Die Bemaßung erfolgt in allen Feldern des Geländersegmentes. Sind die Maße dieser Regel in allen Feldern gleich, dann wird nur das Maß des ersten Feldes dargestellt.

Beim Maßtyp Kettenmaß wird auch die Pfostendicke berücksichtigt. Sind die Maßketten aller Felder gleich, dann wird nur die Maßkette des ersten Feldes dargestellt.

 

Der Achsabstand zweier Pfosten wird bemaßt und zwar in allen Feldern des Geländersegmentes. Sind die Maße dieser Regel in allen Feldern gleich, dann wird nur das Maß im ersten Feld dargestellt.

Wird der lichte Abstand zweier Füllstäbe als Einzelmaß bemaßt, dann wird die Dicke des Füllstabes nicht berücksichtigt. Die Bemaßung erfolgt in allen Feldern des Geländersegmentes. Sind alle Maße dieser Regel gleich, dann wird nur das erste Maß des ersten Feldes dargestellt.

Beim Maßtyp Kettenmaß wird auch die Füllstabdicke berücksichtigt. Sind die Maßketten aller Felder gleich, dann wird nur die Maßkette des ersten Feldes dargestellt.

Diese Regel bemaßt die Achsabstände zwischen Pfosten- und Füllstäben als Maßkette. Die Bemaßung erfolgt für alle Felder des Geländersegmentes. Sind die Maßketten aller Felder gleich, dann wird die Maßkette nur für das erste Feld erstellt.

 


Abmessungen von Blechabwicklungen

Wert

Erklärung

Bezeichnung/ Rule Identifier

Agraffen einer Blechabwicklung auf der linken Seite
Agraffen einer Blechabwicklung rechts und links
Agraffen einer Blechabwicklung oben
Agraffen einer Blechabwicklung unten
Agraffen einer Blechabwicklung oben und unten

 

Beachten Sie:

  • Blechabwicklungen kann kein eigener Verwendungszweck zugeordnet werden, daher bezieht sich der Verwendungszweck immer auf das Blechhauptteil.
  • Die Bemaßungsregeln für die Abwicklung werden nur dann in den Bemaßungsregeln des Verwendungszweckes (z.B. DEFAULT(KANTBLECHE)) gesucht und angewendet, wenn in den Blechabwicklungsparametern der Zeichnungsableitung die entsprechende Bemaßung aktiviert ist. Wird keine entsprechende Bemaßungsregel gefunden, dann wird von HiCAD automatisch eine Regel zusammengebaut.
  • In welcher Ansicht die Bemaßungsregeln für die Blechabwicklung im Regeleditor eingetragen werden, spielt keine Rolle. Eine Ansicht Abwicklung gibt es im Regeleditor nicht. Sinnvoll ist es jedoch, die Bemaßungsregeln für die Abwicklung beispielsweise alle unter der Vorderansicht anzulegen.

Werkstatt- und EinzelteilzeichnungEinstellungen für WerkstattzeichnungenWerkstattzeichnung - Dialogfenster