Thema: Zeichnungsverwaltung
Die Fertigungs- und Montagezeichnungen aus unserem Beispiel sind freigegeben. Aber wir wollen nun nachträglich Bohrungen in das für Bearbeitungen gesperrte mittlere Profil einbauen.
Wenn Sie jetzt versuchen, das Profil zu bearbeiten, erhalten Sie die Meldung , dass das Profil zum Bearbeiten gesperrt ist.
So gehen Sie vor:
auf.
aufgerufen und anschließend die Konstruktion gespeichert.
.Die nicht aktuellen Baugruppen-, Einzelteil- und Montagezeichnungen werden aufgelistet.
Nach der Auswahl der Einträge wird das Fenster mit OK verlassen und die Kontrollabfrage mit JA bestätigt.
Die Zeichnungen werden aktualisiert und erhalten im Schriftfeld wieder die Kennzeichnung in Arbeit.
Anmerkung:
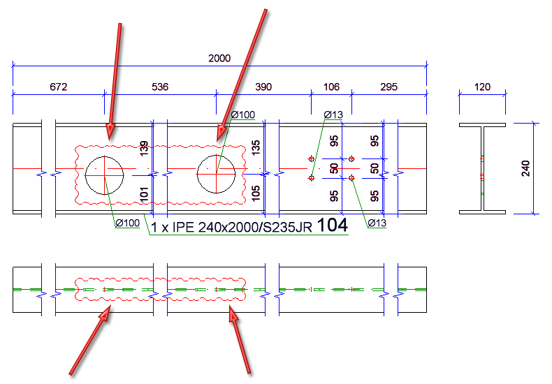
Da in der Konfiguration die Einstellung Revisionswolken erzeugen - in der Vorderansicht und der Draufsicht voreingestellt ist, , werden die Änderungen in den Fertigungszeichnungen durch Revisionswolken gekennzeichnet, z. B. 
Tipp:
Beim Löschen von Bauteilen gehen Sie im Wesentlichen analog vor, d. h. Sie löschen das Teil, positionieren und speichern die Konstruktion und aktualisieren die Zeichnungen. Anschließend sollten Sie das Projekt bereinigen, um die ungültigen Artikelstämme zu entfernen.
weiter mit Schritt 8: Stücklisten erstellen
zurück zu Schritt 6: Zeichnungen freigeben
Voraussetzungen für ein reibungsloses Arbeiten (Zeichn.verw.) • Vorplanung des Konstruktionsverlaufes (Zeichn.verw.) • Funktionsübersicht (Zeichn.verw.)
|
© Copyright 1994-2021, ISD Software und Systeme GmbH |
Datenschutz • AGB • Cookies • Kontakt • Impressum