Thema: HiCAD 3D

Allgemeines zur Bemaßung


Konvertieren (alter) Szenen

Seit der Version 2008 unterstützt HiCAD ein komplett neues Datenmodell für die Bemaßung.

Wenn Sie Konstruktionen früherer HiCAD-Versionen (< 2008) erstmals mit der aktuellen HiCAD-Version laden, haben Sie die Möglichkeit, die Maße der Konstruktion direkt beim Öffnen in das neue Datenmodell zu konvertieren. Ob dies automatisch geschieht, hängt von den Einstellungen im Konfigurationsmanagement (ISDConfigEditor.exe) unter ... > Kompatibilität > Beschriftungen > Bemaßung 3D ab.

Bemaßung der Szene beim Laden konvertieren (nein - ja, ohne Nachfrage - ja, mit Nachfrage)

Default: ja, ohne Nachfrage


Nach dem Konvertieren Meldung ausgeben?
Default: nein.

Ist die Option ja, mit Nachfrage eingestellt. dann fordert HiCAD beim Laden von Szenen mit "alter" Bemaßung die Bestätigung der Konvertierung an. Dazu beantworten Sie die Frage Alle "alten" Maße in "neue" Maße umwandeln? mit Ja

Wenn Sie die Frage mit Nein beantworten, bleiben die alten Maße zunächst erhalten. Zur nachträglichen Konvertierung dieser Maße verwenden Sie die Funktionen des Menüs Bemaßungstools > Versions-Update.

Hinweise:


Assoziativität

3D-Bemaßungen sind assoziativ. Das bedeutet, dass bei einer Änderung der Form oder der Lage des bemaßten Bauteils die Bemaßung automatisch aktualisiert wird - auch bei teileübergreifender Bemaßung.

Jede neu erstellte Bemaßung wird dem aktiven Teil zugeordnet, auch dann, wenn die bemaßte Linie zu einem anderen Teil gehört. Aktivieren Sie daher generell das Bauteil, das Sie gerade bemaßen. Nur dann ist die Assoziativität der Bemaßung garantiert.

 

Bei der Prüfung auf nicht-assoziative Maße wird der Hinweis auf nicht-assoziative Maße nur ausgegeben, wenn das betreffende Maß auch in einer Ansicht eingeblendet ist. Ist dies nicht der Fall, wird zwar die Farbe der Maßzahl geändert, jedoch keine Meldung ausgegeben.


Maße und Ansichten

Wenn Sie mit mehreren Ansichten arbeiten, lassen sich die 3D-Maße in den verschiedenen Ansichten gezielt ein- und ausblenden. Darüber hinaus können Sie in HiCAD Ansichten-übergreifend bemaßen. Insbesondere in komplexen Konstruktionen kann es sinnvoll sein, in einer besonders übersichtlichen Ansicht (z. B. einer Listenansicht) zu bemaßen und die Bemaßung in eine andere Ansicht zu übertragen

Beim Einblenden von Maßen in verschiedenen Ansichten wird immer eine Kopie des Maßes angelegt. Damit lassen sich Maße in den verschiedenen Ansichten auch unterschiedlich positionieren. Maßzahl und Assoziativität bleiben dabei jedoch erhalten.


Maßelemente und -strukturen

Die Bestandteile, aus denen sich die Bemaßung zusammensetzt, werden als Maßelemente bezeichnet. Dies können sein:

(1) Bemaßte Strecke, (2,3) Maßfußpunkte, (4) Maßlinie, (5,6) Maßhilfslinien, (7) Maßzahl, (8) Maßlinienbegrenzung

Wie die zu erzeugende Bemaßung letztlich aufgebaut ist, hängt von den Einstellungen der Maßparameter ab. Durch die Vielzahl der zur Verfügung stehenden Parameter, lässt sich bei Bedarf das Layout der Bemaßung bis in das kleinste Detail individuell gestalten.

Elemente wie Schraffuren oder Linien, die unter einer Maßzahl liegen, werden auf Wunsch - je nach aktuellen Maßparametern - automatisch mit einer Ausnehmung versehen.

 

Neben Einzelmaßen, d.h. eigenständigen Maßen mit nur einer Maßgeometrie und einer Maßzahl, werden häufig Strukturmaße eingesetzt, d.h. Maße, die aus mehreren Maßgeometrien und Maßangaben bestehen.

Kettenmaß

Strukturmaß, bei dem je zwei aufeinander folgende Teilmaße einen gemeinsamen Maßpunkt haben

Stufenmaß

 

Strukturmaß, bei dem alle Teilmaße denselben Anfangspunkt und die Maßlinien der Teilmaße einen festen Abstand voneinander haben.

Bezugsmaß

Kettenmaß, bei dem sich alle Teilmaße auf denselben Anfangspunkt (den Bezugspunkt) beziehen. Die Maßzahlen werden automatisch am Ende jeder Maßeinheit senkrecht zur Maßlinie gesetzt.

Höhenkote

spezielles Bezugsmaß im Bauwesen, Stahlbau etc.

Koordinatenmaß

spezielles Bezugsmaß, bei dem der erste identifizierte Punkt als Bezugspunkt interpretiert wird. Von diesem Punkt aus wird jeweils das Absolutmaß zwischen dem Bezugspunkt und den anderen Maßpunkten ermittelt.

Halbschnittmaß

Maß, bei dem der zweite Maßpunkt durch Spiegelung des ersten Maßpunktes an einer Symmetrieachse entsteht. Halbschnittmaße werden in der Regel verwendet, um Längen symmetrischer Teile darzustellen. Die Darstellung erfolgt im Halbschnitt, d.h. mit einer Maßhilfslinie und verkürzter Maßlinie.

Hinweis:

Wird nur ein Teil der zu einem Strukturmaß gehörenden Fußpunkte verschoben, so bleibt die Lage der Maßlinien erhalten, d.h. die Längen der Maßhilfslinien ändern sich. Werden alle Fußpunkte eines Strukturmaßes verschoben, werden die Maßlinien mit verschoben. Dies gilt für Ketten-, Stufen-, Bezugs-, Koordinaten- und Höhenkotenmaße.


Globale Maßparameter

Mit der Funktion Maßparameter lassen sich auch Einstellungen festlegen, die global für den aktuellen Arbeitsplatz gelten und für alle nachfolgend erzeugten Maße verwendet werden. Diese Einstellungen finden Sie auf der Registerkarte System.


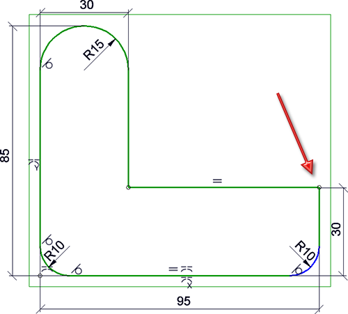
Platzierung von Maßen bei Änderung der Geometrie

Wird die Geometrie eines bereits bemaßten Teils geändert, dann wird das Maß so neu platziert, dass die Länge der kürzesten Maßlinie nach der Änderung der Länge der kürzesten Maßhilfslinie im Ausgangszustand entspricht.

Bei Strukturmaßen werden alle Maßhilfslinien betrachtet.

 

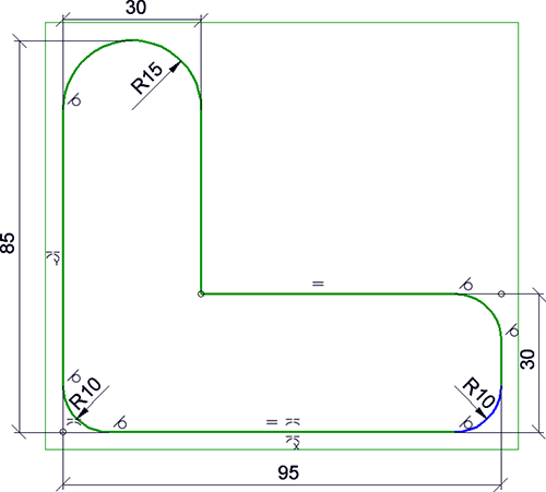
Ein Beispiel:

Die Abbildung zeigt eine bemaßte Skizze.

Wird nun die markierte Ecke gerundet, dann wird das Maß "30" wie abgebildet angepasst.

Bemaßung (3D)Bemaßung - Vorgehensweise (3D)Dialogfenster Maßparameter (3D)

© Copyright 1994-2019, ISD Software und Systeme GmbH
Version 2402 - HiCAD 3D
Ausgabedatum: 01.10.2019

> Feedback zu diesem Thema