Règles de cotation en bref
Les règles de cotation peuvent être réparties en plusieurs groupes :
- Cotes du système
- Dimensions des ensembles
- Dimensions des profilés
- Position des éléments secondaires de profilés
- Usinage des profilés
- Dimensions des tôles
- Usinage des tôles
- Diamètres du perçage dans les profilés ou les tôles
- Position des éléments secondaires d'un ensemble entre eux
- Usinage des éléments secondaires d'un ensemble
- Tôles pliées
- Garde-corps d'escalier
- Dimensions des développements de tôle
Dans l'Éditeur de règles de cotation, les règles pourront être filtrées selon ces groupes.
Veuillez également prendre connaissance dans la rubrique Indications relatives aux règles et paramètres de cotation.
Cotes du système
|
Valeur |
Explication |
Intitulé / Rule Identifier |
|---|---|---|
|
1 |
Longueur entre axes du système |
SYSTEMLENGTH |
|
71 |
Sous-système dans plan de l'aile supérieure |
SUBSYSTEM_UPPERFLANGE Seules les lignes de grille et de sous-grille seront cotées, pas les éléments ! |
|
72 |
Sous-système dans plan de l'aile inférieure |
SUBSYSTEM_LOWERFLANGE Seules les lignes de grille et de sous-grille seront cotées, pas les éléments ! |
|
73 |
Sous-système dans plan de l'âme |
SUBSYSTEM_WEBFACE Seules les lignes de grille et de sous-grille seront cotées, pas les éléments ! |
|
74 |
Sous-système dans plan de l'aile supérieure et inférieure |
SUBSYSTEM_FLANGES Seules les lignes de grille et de sous-grille seront cotées, pas les éléments ! |
|
75 |
Sous-système dans plan de l'aile supérieure et inférieure et de l'âme |
SUBSYSTEM_WEB_AND_FLANGES Seules les lignes de grille et de sous-grille seront cotées, pas les éléments ! |
Dimensions des ensembles
|
Valeur |
Explication |
Intitulé / Rule Identifier |
|---|---|---|
|
2 |
Longueur de l'ensemble |
ASSEMBLYLENGTH |
|
19 |
Hauteur de l'ensemble |
ASSEMBLY_HEIGHT |
|
20 |
Largeur de l'ensemble |
ASSEMBLY_WIDTH
|
|
90 |
Dimensions totales diagonales d'un ensemble (avec ou sans élément principal) |
TOTAL_SIZE_ASSEMBLY Spécialement pour cadre (ensemble sans élément principal) |
Dimensions des profilés
|
Valeur |
Explication |
Intitulé / Rule Identifier |
|---|---|---|
|
3 |
Longueur d'axe |
LENGTH_OF_AXIS |
|
4 |
Longueur de profilé sans éléments attachés frontaux |
PROFLENGTH_WITHOUT |
|
9 |
Longueur de profilé avec éléments attachés frontaux |
PROFLENGTH_WITH |
|
17 |
Hauteur de profilé |
PROFILE_HEIGHT |
|
18 |
Largeur de profilé |
PROFILE_WIDTH
|
|
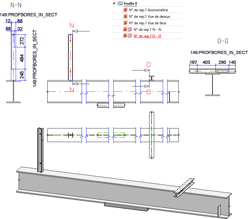
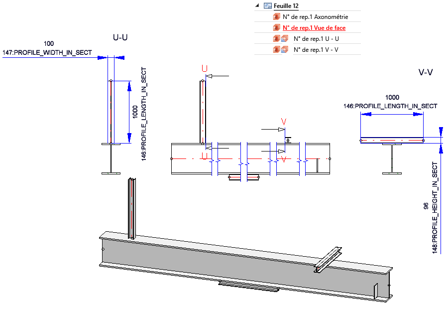
146 |
Longueur des éléments secondaires de profilé sans les vues en coupe |
PROFILE_LENGTH_IN_SECT
|
|
147 |
Largeur des éléments secondaires de profilé sans les vues en coupe |
PROFILE_WIDTH_IN_SECT
|
|
148 |
Hauteur des éléments secondaires de profilé sans les vues en coupe |
PROFILE_HEIGHT_IN_SECT |
Position des éléments secondaires de profilés
|
Valeur |
Explication |
Institulé / Rule Identifier |
|---|---|---|
|
5 |
Sous-système, côté supérieur du profilé |
PROFSYSTEM_UPPERSIDE Uniquement les profilés dont la coupe transversale || au plan de l'écran, uniquement || par rapport à l'axe du profilé
|
|
6 |
Sous-système, surface d’âme du profilé |
PROFSYSTEM_WEBFACE
|
|
7 |
Sous-système, côté inférieur du profilé |
PROFSYSTEM_LOWERSIDE |
|
8* |
Éléments attachés, via contour extérieur |
ATTACHING_PARTS via contour extérieur, non pas via perçages |
|
10* |
Éléments attachés en tôle avec perçages |
ATTACHING_SHEETS Éléments attachés en tôle via perçage ou contour extérieur
|
|
26 |
Perçages dans les plaques frontales |
BORES_IN_FRONT_PLATE |
|
56 |
Position de la tôle, définie par un perçage et l'élément de référence |
SHEET_POSITION_IN_SECT
|
|
57 |
Éléments attachés en tôle, une série de cote pour chaque tôle |
ATTACHING_SHEETS_SEPERATELY Via perçages, si ceux-ci sont cotés perpendiculairement au plan de l'écran et perçages des éléments secondaires, ou via contour extérieur ; c'est la seule règle se référant au profilé pour laquelle la direction VERTIKALSHEETAXIS est autorisée en relation avec la position INSIDE pour, par exemple, coter les plaques frontales sur les coupes dans le sens de la tôle ! |
|
66* |
Éléments attachés en tôle sur côté supérieur du profilé, via perçages ou contour extérieur |
ATTACHING_SHEET_UPPERSIDE |
|
67* |
Éléments attachés en tôle sur côté inférieur du profilé, via perçages ou contour extérieur |
ATTACHING_SHEET_LOWERSIDE |
|
68* |
Surface de l'âme des éléments attachés en tôle, devant l'âme, via perçages ou contour extérieur |
ATTACHING_SHEET_BEFORE_WEB |
|
69* |
Surface de l'âme des éléments attachés en tôle, derrière l'âme, via perçages ou contour extérieur |
ATTACHING_SHEET_BEHIND_WEB |
|
70* |
Éléments attachés de profilé avec axe perpendiculaire à l'axe de l'élément principal, coter via axe du profilé |
ATTACHING_PROFILES_VERT
|
|
83 |
Éléments attachés en tôle avec perçages, incl. perçages dans la vue latérale |
ATTACHING_SHEETS_VERT |
|
84 |
Perçages dans les éléments secondaires (perçages de tous les éléments secondaires), incl. perçages dans la vue latérale |
SUBPARTBORES_VERT |
|
89 |
Tous les éléments via perçage (Perçages dans élément principal + tôles d'élément secondaire + profilés d'élément secondaire, via perçage et arête extérieure (uniquement parallèle à l'axe de la poutre)) |
ALL_PARTS_BORES |
|
111 |
Angle entre élément principal de profilé et profilés d'élément secondaire qui y sont joints |
STWDimRuleIdent_ANGLE_CONNECTED_PROFILES |
|
113* |
Éléments secondaires de profilé à l'aile supérieure, non perpendiculaire à l'axe de l'élément principal |
ATTACHING_PROFILES_INUPPERFLANGE |
|
114* |
Éléments secondaires de profilé à l'aile inférieure, non perpendiculaire à l'axe de l'élément principal |
ATTACHING_PROFILES_INLOWERFLANGE |
|
115* |
Éléments secondaires de profilé devant l'âme, non perpendiculaire à l'axe de l'élément principal |
ATTACHING_PROFILES_BEFORE_WEB |
|
116* |
Éléments secondaires de profilé derrière l'âme, non perpendiculaire à l'axe de l'élément principal |
ATTACHING_PROFILES_BEHIND_WEB |
|
117* |
Éléments secondaires de profilé, non perpendiculaire à l'axe de l'élément principal |
ATTACHING_PROFILES |
|
138 |
Éléments attachés via perçage (également perpendiculaire à la vue) ou contour extérieur, situées devant l'axe de l'élément principal |
ATTACHING_PARTS_VERT_BEFORE_AXIS L'illustration suivante montre un élément principal de profilé et une tôle avec 2 perçages comme élément attaché (1). Dans la configuration, la règle de cotation 138 sera utilisée comme indiqué (2). (3) et (4) montrent la vue de face dans le dessin d'exécution. Dans (3), les éléments attachés seront cotés via les perçages, dans (4), via le contour extérieur.
|
|
139 |
Éléments attachés via perçage (également perpendiculaire à la vue) ou contour extérieur, situées derrière l'axe de l'élément principal |
ATTACHING_PARTS_VERT_BEHIND_AXIS
|
|
140 |
Éléments attachés via perçage (également perpendiculaire à la vue) ou contour extérieur, situées au-dessus de l'axe de l'élément principal |
ATTACHING_PARTS_VERT_ABOVE_AXIS
|
|
141 |
Éléments attachés via perçage (également perpendiculaire à la vue) ou contour extérieur, situées au-dessous de l'axe de l'élément principal |
ATTACHING_PARTS_VERT_BELOW_AXIS
|
|
150 |
Position de l'éléments secondaire de profilé dans les vues en coupe |
PROF_POSITION_IN_SECT |
* Cf. les Indications relatives aux règles de cotation
Usinage des profilés
|
Valeur |
Explication |
Intutilé / Rule Identifier |
|---|---|---|
|
11 |
Perçages dans les éléments secondaires |
SUBPARTBORES |
|
12 |
Usinages de profilé dans l'âme |
PROFBORES_INWEB |
|
13 |
Usinages de profilé dans l'aile supérieure |
PROFBORES_INUPPERFLANGE
|
|
14 |
Usinages de profilé dans l'aile inférieure |
PROFBORES_INLOWERFLANGE |
|
15 |
Usinages de profilé dans les ailes supérieure et inférieure |
PROFBORES_INFLANGES |
|
16 |
Perçages des profilés, décalage de système parallèle à l’axe du profilé |
PROFBORES_SYSTEMOFFSET_PARALLEL |
|
21 |
Longueur du grugeage au début |
NOTCH_LENGTH_BEGIN |
|
22 |
Largeur du grugeage au début |
NOTCH_WIDTH_BEGIN |
|
23 |
Longueur du grugeage à la fin |
NOTCH_LENGTH_END |
|
24 |
Largeur du grugeage à la fin |
NOTCH_WIDTH_END |
|
27 |
Troncage de profilé oblique au début |
DIAGONAL_CUT_BEGIN |
|
28 |
Troncage de profilé oblique à la fin |
DIAGONAL_CUT_END |
|
58 |
Rayon des courbures (congés) aux grugeages de profilé |
PROFOUTLINE_RADIUS |
|
59 |
Rayon des courbures aux découpages de profilé |
PROFBORES_RADIUS |
|
64 |
Longueur du troncage au début du profilé |
SECTION_LENGTH_BEGIN |
|
65 |
Longueur du troncage à la fin du profilé |
SECTION_LENGTH_END |
|
85 |
Usinages de profilé dans l'âme, incl. usinages dans la vue latérale |
PROFBORES_INWEB_VERT |
|
86 |
Usinages de profilé dans l'aile supérieure, incl. usinages dans la vue latérale |
PROFBORES_INUPPERFLANGE_VERT |
|
87 |
Usinages de profilé dans l'aile inférieure, incl. usinages dans la vue latérale |
PROFBORES_INLOWERFLANGE_VERT |
|
88 |
Usinages de profilé dans les ailes supérieure et inférieure, incl. usinages dans la vue latérale |
PROFBORES_INFLANGES_VERT |
|
123 |
Angle entre les axes de perçages |
BORE_ANGLES (uniquement dans la vue de gauche et de droite et uniquement parallèle au plan de l'écran !) |
|
124 |
Perçages de profilé de type trou oblong |
PROF_LONGHOLES_ONLY
|
|
125 |
Perçages de profilé de type trou oblong dans l'aile supérieure |
PROF_LONGHOLES_ONLY_INUPPERFLANGE |
|
126 |
Perçages de profilé de type trou oblong dans l'aile inférieure |
PROF_LONGHOLES_ONLY_INLOWERFLANGE |
|
127 |
Perçages de profilé de type trou oblong dans l'âme |
PROF_LONGHOLES_ONLY_INWEB |
|
128 |
Perçages de profilé de type perçage circulaire, série séparée par diamètre de perçage |
PROF_CIRCLEBORES_ONLY |
|
129 |
Perçages de profilé de type perçage circulaire dans l'aile supérieure, série séparée par diamètre de perçage |
PROF_CIRCLEBORES_ONLY_INUPPERFLANGE |
|
130 |
Perçages de profilé de type perçage circulaire dans l'aile inférieure, série séparée par diamètre de perçage |
PROF_CIRCLEBORES_ONLY_INLOWERFLANGE |
|
131 |
Perçages de profilé de type perçage circulaire dans l'âme, série séparée par diamètre de perçage |
PROF_CIRCLEBORES_ONLY_INWEB |
|
142 |
Perçages de profilé situés devant l'axe de l'élément principal |
PROFBORES_BEFORE_AXIS Les règles 142 - 145 créent des séries de cote séparées selon la position de l'usinage par rapport à l'axe du profilé. Si les cotations perpendiculaires doivent être étendues vers la gauche ou vers la droite selon la position de l'usinage par rapport au milieu du profilé, sélectionnez alors Position : Automatique. |
|
143 |
Perçages de profilé situés derrière l'axe de l'élément principal |
PROFBORES_BEHIND_AXIS |
|
144 |
Perçages de profilé situés au-dessus de l'axe de l'élément principal |
PROFBORES_ABOVE_AXIS |
|
145 |
Perçages de profilé situés au-dessous de l'axe de l'élément principal |
PROFBORES_BELOW_AXIS |
|
149 |
Perçages des éléments secondaires de profilé dans les vues en coupe |
PROFBORES_IN_SECT |
|
151 |
Perçages dans l'aile supérieure, séparés selon la position par rapport à l'axe du profilé |
PROFBORES_INUPPERFLANGE_SEPERATED |
|
152 |
Perçages dans l'aile inférieure, séparés selon la position par rapport à l'axe du profilé |
PROFBORES_INLOWERFLANGE_SEPERATED |
|
153 |
Perçages dans l'âme, séparés selon la position par rapport à l'axe du profilé Les règles 151, 152 et 153 ne s'appliquent qu'aux cotations parallèles à l'axe du profilé, car il existe d'autres mécanismes de séparation pour les cotations perpendiculaires à l'axe du profilé. Seuls les perçages situés dans le plan de vue seront pris en compte. Si comme position de la série de cote choisie est Automatique, les séries de cote seront étirées , selon la position des perçages vers le haut ou vers le bas. |
PROFBORES_INWEB_SEPERATED |
Dimensions des tôles
|
Valeur |
Explication |
Intitulé / Rule Identifier |
|---|---|---|
|
29 |
Longueur de tôle |
SHEET_LENGTH |
|
30 |
Largeur de tôle |
SHEET_WIDTH |
|
31 |
Épaisseur de tôle |
SHEET_THICKNESS |
|
47 |
Longueur des tôles (éléments secondaires) dans les vues en coupe |
SHEET_LENGTH_IN_SECT |
|
48 |
Largeur des tôles (éléments secondaires) dans les vues en coupe |
SHEET_WIDTH_IN_SECT |
Usinages des tôles
|
Valeur |
Explication |
Intitulé / Rule Identifier |
|---|---|---|
|
32 |
Perçages dans les tôles, côté droit |
SHEETBORES_RIGHT |
|
33 |
Perçages dans les tôles, côté gauche |
SHEETBORES_LEFT |
|
34 |
Perçages dans les tôles, côté droit ou gauche |
SHEETBORES_RIGHTANDLEFT |
|
35 |
Perçages dans les tôles, moitié supérieure |
SHEETBORES_ABOVE |
|
36 |
Perçages dans les tôles, moitié inférieure |
SHEETBORES_BELOW |
|
37 |
Perçages dans les tôles, moitié supérieure ou inférieure |
SHEETBORES_ABOVEANDBELOW |
|
38 |
Contour extérieur de tôle, côté droit |
SHEETOUTLINE_RIGHT |
|
39 |
Contour extérieur de tôle, côté gauche |
SHEETOUTLINE_LEFT |
|
40 |
Contour extérieur de tôle, côté droit ou gauche |
SHEETOUTLINE_RIGHTANDLEFT |
|
41 |
Contour extérieur de tôle, moitié supérieure |
SHEETOUTLINE_ABOVE |
|
42 |
Contour extérieur de tôle, moitié inférieure |
SHEETOUTLINE_BELOW |
|
43 |
Contour extérieur de tôle, moitié supérieure ou inférieure |
SHEETOUTLINE_ABOVEANDBELOW |
|
49 |
Contour extérieur à droite et à gauche des tôles (éléments secondaires) dans les vues en coupe |
SHEETOUTLINE_RIGHTANDLEFT_IN_SECT |
|
50 |
Contour extérieur en haut et en bas des tôles (éléments secondaires) dans les vues en coupe |
SHEETOUTLINE_ABOVEANDBELOW_IN_SECT |
|
51 |
Perçages dans les tôles (éléments secondaires), côté droit ou gauche, dans les vues en coupe |
SHEETBORES_RIGHTANDLEFT_IN_SECT |
|
52 |
Perçages dans les tôles (éléments secondaires), moitié supérieure et inférieure, dans les vues en coupe |
SHEETBORES_ABOVEANDBELOW_IN_SECT |
|
60 |
Rayon des courbures aux contours extérieurs des tôles |
SHEETOUTLINE_RADIUS |
|
61 |
Rayon des courbures aux découpages des tôles |
SHEETBORES_RADIUS |
|
62 |
Rayon des courbures aux contours extérieurs des tôles dans les vues en coupe |
SHEETOUTLINE_RADIUS_IN_SECT |
|
63 |
Rayon des courbures aux découpages des tôles dans les vues en coupe |
SHEETBORES_RADIUS_IN_SECT |
|
154 |
Troncages de tôle obliques |
SHEET_DIAGONAL_CUT |
Diamètres du perçage dans les profilés ou les tôles
|
Valeur |
Explication |
Intitulé / Rule Identifier |
|---|---|---|
|
44 |
Diamètre des perçages simples dans l'élément principal |
BORE_DIAMETER_MAINPART |
|
45 |
Diamètre des perçages de pièce standardisée dans l'élément principal |
NORMBORE_DIAMETER_MAINPART |
|
46 |
Diamètre des boulonnages dans l'élément principal |
CONNECTION_DIAMETER_MAINPART |
|
53 |
Diamètre des perçages simples dans les tôles (éléments secondaires) dans les vues en coupe
|
BORE_DIAMETER_IN_SECT |
|
54 |
Diamètre des perçages de pièce standardisée dans les tôles (éléments secondaires) dans les vues en coupe
|
NORMBORE_DIAMETER_IN_SECT |
|
55 |
Diamètre des boulonnages dans les tôles (éléments secondaires) dans les vues en coupe |
CONNECTION_DIAMETER_IN_SECT |
Position des éléments secondaires d'un ensemble entre eux
|
Valeur |
Explication |
Intitulé / Rule Identifier |
|---|---|---|
|
76 |
Longueur des éléments secondaires de profilé |
PROFILELENGTH_ATTACHING_PROFILES Longueur de tous les éléments secondaires (également obliques) |
|
77 |
Éléments secondaires de profilé joints |
CONNECTED_PROFILES Début et fin de toutes les jonctions directes des éléments secondaires sur l'élément principal |
|
80 |
Éléments secondaires de profilé joints aux profilés déterminants |
CONNECTED_PROFILES_RELEVANTPROFILES Début et fin de toutes les jonctions directes des éléments secondaires sur l'élément déterminant |
|
94* |
Tous les éléments attachés (via contour extérieur, non pas via perçages) des éléments secondaires de profilé déterminants |
ATTACHING_PARTS_RELVPROFS |
|
96* |
Éléments attachés en tôle avec perçages (éléments attachés en tôle via perçage ou contour extérieur) sur les éléments secondaires de profilé déterminants |
ATTACHING_SHEETS_RELVPROFS |
| 105 |
Éléments attachés en tôle, sur les éléments secondaires de profilé déterminants, une série de cote pour chaque tôle |
ATTACHING_SHEETS_SEPERATELY_RELVPROFS |
| 106 |
Éléments attachés en tôle, face supérieure de profilé sur les éléments secondaires de profilé déterminants, via perçages ou contour externe |
ATTACHING_SHEET_UPPERSIDE_RELVPROFS |
| 107 |
Éléments attachés en tôle, face inférieure de profilé sur les éléments secondaires de profilé déterminants, via perçages ou contour externe |
ATTACHING_SHEET_LOWERSIDE_RELVPROFS |
| 108 |
Surface de l’âme des éléments attachés de tôle, sur les éléments secondaires de profilé déterminants, devant l’âme, via perçages ou contour externe |
ATTACHING_SHEET_BEFORE_WEB_RELVPROFS |
| 109 |
Surface de l’âme des éléments attachés de tôle, sur les éléments secondaires de profilé déterminants, derrière l’âme, via perçages ou contour externe |
ATTACHING_SHEET_BEHIND_WEB_RELVPROFS |
|
110* |
Éléments secondaires de profilé sur les éléments secondaires de profilé déterminants |
ATTACHING_PROFILES_VERT_RELVPROFS |
|
112 |
Angle entre profilés déterminants et les profilés d'élément secondaire qui y sont joints |
STWDimRuleIdent_ANGLE_CONNECTED_PROFILES_RELPROFS |
* Cf. les Indications relatives aux règles de cotation
Usinage des éléments secondaires d'un ensemble
|
Valeur |
Explication |
Intitulé / Rule Identifier |
|---|---|---|
|
98 |
Perçages de profilé à l'âme des éléments secondaires de profilé déterminants |
PROFBORES_INWEB_RELVPROFS |
|
99 |
Perçages dans l’aile supérieure des éléments secondaires de profilé déterminants |
PROFBORES_INUPPERFLANGE_RELVPROFS |
|
100 |
Perçages dans l’aile inférieure des éléments secondaires de profilé déterminants |
PROFBORES_INLOWERFLANG_RELVPROFS |
|
101 |
Perçages dans les ailes supérieur et inférieur des éléments secondaires de profilé déterminants |
PROFBORES_INFLANGES_RELVPROFS |
Tôles pliées
|
Valeur |
Explication |
Intitulé / Rule Identifier |
|---|---|---|
|
132 |
Longueur de tôle pliée |
SHEETMETAL_LENGTH |
|
133 |
Largeur de tôle pliée |
SHEETMETAL_WIDTH |
|
134 |
Hauteur de tôle pliée |
SHEETMETAL_HEIGHT |
|
135 |
Cotes de segment paramétriques des tôles pliées |
SHEETMETAL_PARA_DISTANCE |
|
136 |
Cotes angulaires paramétriques des tôles pliées |
SHEETMETAL_PARA_ANGLE |
|
137 |
Cotes circulaires paramétriques des tôles pliées |
SHEETMETAL_PARA_CIRCLEDIM |
|
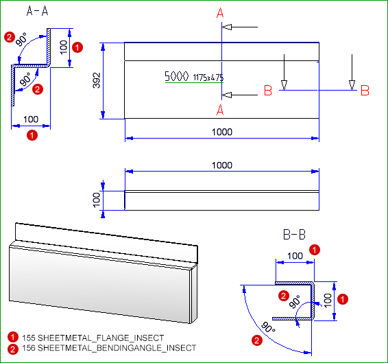
155 |
Longueur de rabat des tôles pliées dans les vues en coupe
|
SHEETMETAL_FLANGE_INSECT
Nota bene : Pour coter la longueur du rabat d'une tôle pliée dans la vue en coupe, le point d'attache suivant est coté :
L'illustration suivante montre un exemple. Le rabat (1) a un angle de 45° par rapport au prochain rabat, le rabat (2) a un angle de 95° par rapport au prochain rabat. Dans la vue en coupe, c'est pour le rabat (1) le point tangentiel et pour le rabat (2) le point d'intersection théorique qui sera coté comme point d'attache.
|
|
156 |
Angle d'ouverture des zones de pliage des tôles pliées |
SHEETMETAL_BENDINGANGLE_INSECT |
|
157 |
Usinages dans les tôles pliées |
SHEETMETALBORES |
|
158 |
Usinages dans les tôles pliées, incl. perçages perpendiculaires à la vue |
SHEETMETALBORES_VERT |
|
159 |
Contours extérieurs des tôles pliées |
SHEETMETALOUTLINE |
|
160 |
Usinages dans les tôles pliées, séries de cote séparées selon les rabats |
SHEETMETALBORES_SEPERATED |
|
161 |
Usinage dans les tôles pliées, incl. perçages perpendiculaires à la vue, séries de cote séparées selon les rabats |
SHEETMETALBORES_VERT_SEPERATED |
|
162 |
Contours extérieurs des tôles pliées, séries de cote séparées selon les rabats |
SHEETMETALOUTLINE_SEPERATED |
|
La tôle pliée sera considérée avec ses rabats et ses zones de pliage comme un élément principal. Veuillez vous assurer d'utiliser un système de coordonnées logique pour les éléments lorsque vous utilisez les fonctions sous Orientation des dessins dérivés dans le menu contextuel pour les éléments 3D.
|
L'illustration suivante montre une tôle pliée avec différents perçages. Pour l'orientation des dessins dérivés , la vue de dessus a été définie comme indiqué sur la surface du rabat (1). (2) montre la vue de face du dessin dérivé, (3) la vue de dessus. Comme modèle, c'est la configuration DEFAULT(KANTBLECHE) qui a été utilisée - complétée des règles 157, 158 et 161.
|
|
|
163 |
Coter les agrafes dans les tôles pliées via un point de cotation |
SHEETMETAL_DIMPOINT_AGRAFFE
(1) Point de cotation de l'agrafe |
Garde-corps d'escalier
|
Valeur |
Explication |
Intitulé / Rule Identifier |
|---|---|---|
|
1001 |
Longueur totale de l'ensemble Segment du garde-corps |
TOTAL_LENGTH_RAILINGSEGMENT uniquement pour un ensemble Segment du garde-corps |
|
1002 |
Hauteur totale de l'ensemble Segment du garde-corps |
TOTAL_HEIGHT_RAILINGSEGMENT uniquement pour un ensemble Segment du garde-corps |
|
1003 |
Longueur totale de l’ensemble Segment du garde-corps sans plaques de base |
TOTAL_LENGTH_RAILINGSEG_WITHOUT uniquement pour un ensemble Segment du garde-corps |
|
1004 |
Hauteur totale de l’ensemble Segment du garde-corps sans plaques de base |
TOTAL_HEIGHT_RAILINGSEG_WITHOUT uniquement pour un ensemble Segment du garde-corps |
|
1005 |
Dimension totale de l’ensemble Segment du garde-corps |
TOTAL_SIZE_RAILINGSEGMENT uniquement pour un ensemble Segment du garde-corps |
|
1006 |
Distance intérieure des poteaux Si l'écart intérieur entre les poteaux est coté comme cote individuelle, l'épaisseur du poteau ne sera alors pas prise en compte. La cotation se fait dans tous les champs du segment du garde-corps. Si les cotes de cette règle sont identiques dans tous les champs, seule la cote du premier champ sera alors représentée. Pour le type de cote Série de cote, l'épaisseur du poteau sera prise en compte. Si les séries de cote de tous les champs sont identiques, seule la série cote du premier champ sera alors représentée. |
CLEARANCE_POST uniquement pour un ensemble Segment du garde-corps L'illustration montre un escalier avec des distances identiques entre les poteaux et la balustre suivante ainsi qu'entre les balustres. Les épaisseurs des balustres et des poteaux sont identiques. Les cotes et les séries de cote des règles 1006 à 1009 sont identiques pour tous les champs.
Le segment oblique de l'escalier illustré possède des distances individuelles de poteaux et de balustres, ainsi que des épaisseurs différentes de poteaux et de balustres. Cela signifie que les cotes et les séries de cote des règles 1006 à 1009 ne sont pas identiques.
|
|
1007 |
Distance axiale des poteaux L'écart des axes de deux poteaux sera coté et ce dans tous le champs du segment du garde-corps. Si les cotes de cette règle sont identiques dans tous les champs, seule la cote du premier champ sera alors représentée. |
CENTERDISTANCE_POST uniquement pour un ensemble Segment du garde-corps |
|
1008 |
Distance intérieur des balustres Si l'écart entre deux balustres est coté comme cote individuelle, l'épaisseur des balustres ne sera alors pas prises en compte. La cotation se fait dans tous les champs du segment du garde-corps. Si toutes les cotes de cette règle sont identiques, seule la première cote du premier champ sera alors représentée. Pour le type de cote Cote en série, l'épaisseur de la balustre sera également prise en compte. SSi les séries de cote de tous les champs sont identiques, seule la série cote du premier champ sera alors représentée. |
CLEARANCE_WEBMEMBER uniquement pour un ensemble Segment du garde-corps |
|
1009 |
Distance axiale des balustres Cette règle cote l'écart des axes entres les poteaux et les balustres comme série de cote. La cotation se fait dans tous les champs du segment du garde-corps. Si les séries de cote de tous les champs sont identiques, la série de cote ne sera créée que pour le premier champ. |
CENTERDISTANCE_WEBMEMBER uniquement pour un ensemble Segment du garde-corps |
|
1010 |
Dépassement de la main courante |
HANDRAIL_PROJECTION uniquement pour un ensemble Segment du garde-corps |
|
1011 |
Éléments secondaires |
RAILING_SUBPARTS uniquement pour un ensemble Segment du garde-corps |
|
1012 |
Éléments secondaires des ensembles de poteaux |
POST_SUBPARTS uniquement pour un ensemble Segment du garde-corps |
|
1013 |
Éléments secondaires des ensembles de remplissage |
FILLING_SUBPARTS uniquement pour un ensemble Segment du garde-corps |
|
1014 |
Angle poteau/main courante |
ANGLE_POST_HANDRAIL uniquement pour un ensemble Segment du garde-corps |
|
1015 |
Perçages |
RAILING_BORES uniquement pour un ensemble Segment du garde-corps |
Le segment oblique de l'escalier illustré possède des distances individuelles de poteaux et de balustres, ainsi que des épaisseurs différentes de poteaux et de balustres. Cela signifie que les cotes et les séries de cote des règles 1006 à 1009 ne sont pas identiques.
Dimensions des développements de tôle
|
Valeur |
Explication |
Intitulé / Rule Identifier |
|---|---|---|
|
3001 |
Dimensions d'un développement de tôle |
SIZE_DEV |
|
3002 |
Lignes de pliage d'un développement de tôle |
BENDLINES_DEV |
|
3003 |
Contour d'un développement de tôle |
OUTLINE_DEV |
|
3004 |
Perçages d'un développement de tôle à droite |
BORES_RIGHT_DEV |
|
3005 |
Perçages d'un développement de tôle à gauche |
BORES_LEFT_DEV |
|
3006 |
Perçages d'un développement de tôle à droite et à gauche |
BORES_RIGHTANDLEFT_DEV |
|
3007 |
Perçages d'un développement de tôle en haut |
BORES_ABOVE_DEV |
|
3008 |
Perçages d'un développement de tôle en bas |
BORES_BELOW_DEV |
|
3009 |
Perçages d'un développement de tôle en haut et en bas |
BORES_ABOVEANDBELOW_DEV |
|
3010 |
Agrafes d'un développement de tôle à droite |
AGRAFFES_RIGHT_DEV |
|
3011 |
Agrafes d'un développement de tôle à gauche |
AGRAFFES_LEFT_DEV |
|
3012 |
Agrafes d'un développement de tôle à droite et à gauche |
AGRAFFES_RIGHTANDLEFT_DEV |
|
3013 |
Agrafes d'un développement de tôle en haut |
AGRAFFES_ABOVE_DEV |
|
3014 |
Agrafes d'un développement de tôle en bas |
AGRAFFES_BELOW_DEV |
|
3015 |
Agrafes d'un développement de tôle en haut et en bas |
AGRAFFES_ABOVEANDBELOW_DEV |
|
3016 |
Coter les agrafes dans le développement de la tôle via un point de cotation |
DIMPOINT_AGRAFES_DEV |
|
Nota bene :
|
Exemple :
Dans l'illustration suivante, des règles de cotation ont été définies pour le développement de tôle. Dans les paramètres de développement de la tôle pour la dérivation du dessin, les options Dimension et Usinages sont cochées sous Cotation, l'option Lignes de pliage n'est pas cochée. La règle 3002 n'est alors pas prise en compte lors de la dérivation du dessin.
Dessin d'exécution et de détail • Paramètres pour dessins d'exécution • Dessin d'exécution : fenêtre de dialogue
