Généralités sur la cotation
- Conversion de scènes (anciennes)
- Associativité
- Cotes et vues
- Éléments inhérents aux cotes structures des cotes
- Paramètre global de cote
- Actualisation des cotes lors d'une modification de la géométrie
Conversion de scènes (anciennes)
Depuis la Version 2008, HiCAD met en pratique une modélisation de données complètement nouvelle pour la cotation.
Si vous chargez des scènes de versions antérieures de HiCAD (< 2008) pour la première fois avec la version actuelle de HiCAD, vous avez la possibilité de convertir directement à l'ouverture de la scène les cotes dans la nouvelle modélisation de données. Vous pouvez décider si cela doit avoir lieu de façon automatique au moyen des paramètres du Gestionnaire de Configuration (ISDConfigEditor.exe) sous
Convertir la cotation de la scène à l'ouverture ? (Non - Oui, sans demande - Oui, avec demande)
Par défaut : Oui, sans demande
Afficher message après la conversion ?
Par défaut : Non.
Si le paramètre Oui, avec demande est choisi. HiCAD demande alors à l'ouverture des scènes avec une cotation "ancienne" de confirmer la conversion. Pour ce faire, vous devez répondre à la question Transformer toutes les 'anciennes' cotes en 'nouvelles' ? par Oui.
En répondant à la question par Non, les anciennes cotes sont tout d'abord conservées. Pour convertir par la suite ces cotes, recourez aux fonctions du menu Outils de cotation sous Outils > Extras > Mise à jour de la version.
À savoir :
- Nous recommandons de convertir les cotes directement à l'ouverture des anciennes scènes !
- Pour les scènes gérées par PDM, vous disposez dans le Gestionnaire de Configuration également du paramètre Convertir la cotation de dessins validés à l'ouverture ?
Associativité
Les cotations 3D sont associatives.En d'autres termes, lors d'une modification de la forme ou de la position de l'élément coté, la cotation sera actualisée automatiquement, même concernant la cotation inter-éléments.
Chaque cotation nouvellement créée sera attribuée à l'élément actif, même lorsque la ligne cotée appartient à un autre élément. Activez donc par principe l'élément que vous êtes en train de coter. Cela afin de garantir à coup sûr l'associativité de la cotation.
Lors d'une vérification des cotes non associatives, le renvoi des cotes non associatives ne sera possible que si la cote en question est également affichée dans une vue. Dans le cas contraire, la couleur du chiffre de cote sera certes modifiée, mais aucun message n'apparaîtra.
Cotes et vues
Lorsque vous travaillez avec plusieurs vues, les cotes 3D peuvent être affichées ou masquées indépendamment les unes les autres dans les différentes vues. Par ailleurs, vous avez la possibilité dans HiCAD de coter inter-vues. Dans les constructions complexes notamment, il peut être utile de coter dans une vue facile d'interprétation (par exemple une vue de liste) et de transférer la cotation dans une autre vue.
Pour afficher les cotes dans plusieurs vues, une copie de la cote est toujours créée. Cela permet de positionner les cotes différemment dans plusieurs vues. Le chiffre de cote et l'associativité restent cependant conservés.
Éléments et structures de cote
Les éléments inhérents à la cotation sont désignés comme éléments de cote. Cela peut être :
- la géométrie de cote avec la ligne de cote, les lignes d'attache, les fins de ligne de cote et les points d'attache de cote,
- la saisie de cote avec le chiffre de cote, les textes de cote, les tolérances et les symboles.
(1) Segment coté, (2,3) Points d'attache de cote, (4) Ligne de cote, (5,6) Lignes d'attache de cote, (7) Chiffre de cote, (8) Fin de ligne de cote
Comment la cotation à créer est insérée dépend de ce qui a été sélectionné dans les paramètres de cote. En raison du grand nombre de paramètres disponibles, il vous est possible de définir individuellement la mise en forme de la cotation dans ses moindres détails.
Les éléments comme les hachures ou les lignes qui se trouvent en-dessous un chiffre de cote pourront au besoin, selon les Paramètres de cote en cours, être muni automatiquement d'un cadre.
En plus des cotes individuelles, c'est-à-dire des cotes propres munies uniquement d'une géométrie de cote et d'un chiffre de cote, il est courant d'utiliser des cotes de structure, c'est-à-dire des cotes qui se composent de plusieurs géométries de cote et données de cote.
|
Cote en série |
Cote de structure dans laquelle deux cotes partielles se suivent l'une après l'autre et partagent un point de cote en commun. |
|
Cote parallèle |
Cote de la structure dans laquelle toutes les cotes partielles ont le même point de départ et les lignes de cote des cotes partielles sont à une distance fixe les unes des autres. |
|
Cote de référence |
Cote en série dans lesquelles toutes les cotes partielles se réfèrent au même point de départ (le point de référence). Les chiffres de cote sont automatiquement placés à la fin de chaque unité de cote, perpendiculairement à la ligne de cote. |
|
Cote de niveau |
Cote de référence spéciale dans le bâtiment, la charpente métallique, etc. |
|
Cote de coordonnées |
Cote de référence spéciale dans laquelle le premier point identifié est interprété comme le point de référence. À partir de ce point, chaque cote absolue entre le point de référence et les autres points de la cote est établie. |
|
Cote de demi-coupe |
Cote dans laquelle le point de la deuxième cote est créé en retournant le point de la première cote par rapport à un axe de symétrie. Les cotes de demi-coupe sont généralement utilisées pour représenter les longueurs des pièces symétriques. La représentation est faite en demi-coupe, c'est-à-dire avec une ligne d'attache et une ligne de cote raccourcie. |
À savoir :
Si une seule partie des points d'attache appartenant à la cote de structure est déplacée, la position des lignes de cote est conservée, c'est-à-dire que les longueurs des lignes d'attache changent. Si tous les points d'attache de la cote de structure sont déplacés, les lignes de cote sont également déplacées. Cela s'applique aux cotes en série, parallèles, de référence, de coordonnées et de hauteur.
Paramètre global de cote
À l'aide de la fonction Paramètres de cote, vous pouvez également définir des paramètres qui s'appliquent globalement à votre poste de travail actuel et qui seront utilisés pour toutes les cotes créées par la suite. Ces paramètres se trouvent dans l'onglet Système de la fenêtre de dialogue.
Placement des cotes lors d'une modification de la géométrie
Si vous modifiez la géométrie d'un élément déjà coté, la cote sera alors placée à nouveau de sorte que la longueur de la ligne de cote la plus courte correspond, après modification, à la longueur de la ligne d'attache la plus courte dans l'état d'origine.
Pour les cotes de structure, toutes les lignes d'attache de cote seront prises en compte.
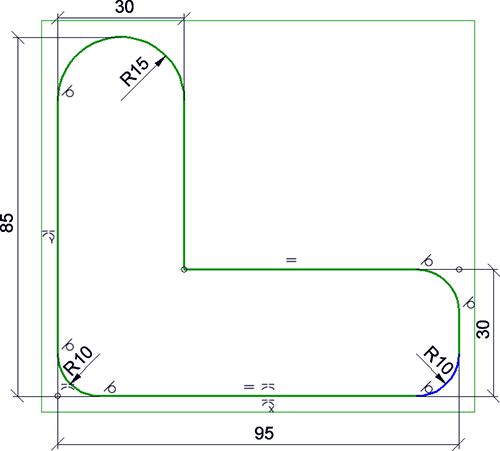
Exemple :
L'illustration montre une esquisse cotée.
En arrondissant l'angle surligné, la cote "30" sera alors corrigée comme suit.
Cotation (3D) • Cotation - Marche à suivre (3D) • Fenêtre de dialogue Paramètres de cote (3D)
