Bills of Materials / Production Data (BIM-PLM)

To craete a Bill of Materials for the example drawing, select PDM > Production > BOM . In the BOM dialogue window, specify the desired output options. Click the Continue button to start the BOM generation.

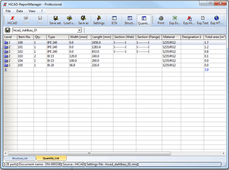
Quantity list in the Report Manager
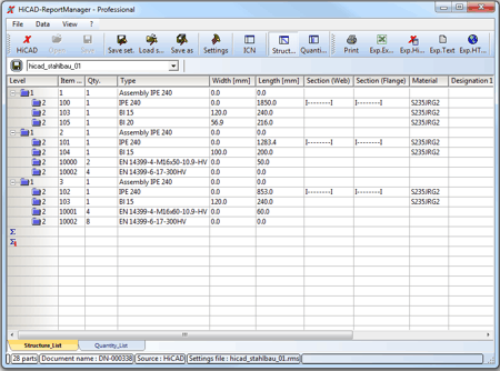
Structure list in the Report Manager

 

To create a DSTV BOM, select PDM > Production > Prod. > DSTV-BOM .

Example of a DSTV BOM file in the integrated Viewer

 Related Topics

Production (BIM-PLM) 

Version 1702 - HiCAD BIM-PLM | Date: 9/2012 | © Copyright 2012, ISD Software und Systeme GmbH