Thema: HiCAD Metallbau
Andockfenster Bauwesen-Funktionen > Metallbau / Fassadenbau > 3D Metallbau > Metallbau Profil-Anschlüsse > Pfostenstoß
Im Andockfenster Bauwesen-Funktionen (ausklappbar am rechten Rand des HiCAD-Fensters) gibt es den Untereintrag
Dazu gehört auch der Pfostenstoß (1314).
Mit dieser Designvariante ist es möglich, zwei Baureihenprofile entlang der Profilachse zu verbinden. Dies kann sowohl über eine sichtbare, seitliche Verschraubung passieren, als auch von oben mit einer außen unsichtbaren. Einzelteile der Verschraubung können dabei auch versetzt oder mit bestimmten Abständen vom Stoß eingebaut werden. Es besteht außerdem die Möglichkeit, das Einschubprofil nur an einem Pfostenprofil zu verschrauben (z.B. als Ausgleich für Wärmedehnung).
Identifizieren Sie nach Auswahl des Pfostenstoß (1314) im Fenster Bauwesen-Funktionen zunächst die beiden zu verbindenden Profile.
Es öffnet sich der Einbaudialog mit verschiedenen Registerkarten.
Oben im Fenster können Sie außerdem die Konfiguration verwalten. Siehe dazu: Dialogfenster für Anschlüsse: Konfiguration verwalten (3D-STB)
Favoriten
Die Einstellungen des Dialoges lassen sich als Favoriten speichern und jederzeit wiederverwenden. Dazu klicken Sie unten links im Dialogfenster auf das Symbol
, um das Kontextmenü zu aktivieren. Mehr zur Favoritenverwaltung finden Sie in den HiCAD Grundlagen unter Favoriten.
Unter Anschluss können Sie auswählen, ob die Befestigung Profil-Verbinder
angelegt werden soll.
Je nachdem ob Sie in dem Auswahlfeld direkt darüber Blech, Hohlprofil oder Baureihenprofil als Verbinder ausgewählt haben, werden für diesen dann darunter unter der Überschrift Verbindungsblech, Hohlprofil oder Baureihenprofil weitere Optionen angeboten.
Bei einem Blech ist nur die Verbindungsoption seitlich mit beidseitigen Schrauben möglich.
Hohlprofil, Profil-Verbinder von oben
Hohlprofil, Profil-Verbinder seitlich mit beidseitigen Schrauben
Hohlprofil, Profil-Verbinder seitlich mit durchgehenden Schrauben.
Im Anschluss-Fenster können Sie neben den Baureihenprofilen außerdem ein anderes Blech oder Hohlprofil mit einem Klick auf
über den Katalog auswählen, sowie die Länge, und im Falle des Bleches auch die Höhe im Eingabefeld ändern (wenn Sie einen Flachstahl aus dem Katalog auswählen, entfällt das Auswahlfeld Höhe, da diese bereits für das Teil festgelegt ist).
Als Baureihenprofil stehen im Katalog acht Einschubprofile vom System FW 50+ zur Verfügung.
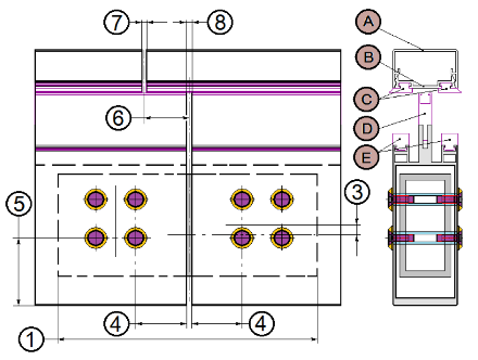
In der Registerkarte Geometrie können Sie weitere Attribute der Verbindung bestimmen. In der Grafik rechts sehen Sie mit Nummern und Buchstaben gekennzeichnet, für welche Geometrie ein entsprechender Wert im Dialogfeld vergeben werden kann (die Nummern und Buchstaben stehen hier an den entsprechenden Menüpunkten in Klammern).
Jeweils für Raster X und Raster Y (X- bzw.Y-Richtung des Rasters der Bohrungsdraufsicht) können Sie die Anzahl der Bohrungen bestimmen. Darunter können Sie die Abstände zwischen den Bohrungen entweder untereinander einzeln vergeben (die entsprechende Anzahl an Eingabefeldern wird zur ausgewählten Anzahl der Bohrungen eingeblendet), oder bei gleichen Abständen im Feld Alle Ändern den Wert eingeben, mit dem dann alle Bohrungen in einer Richtung gesetzt werden.
In der Registerkarte Befestigung können Schraube und Scheibe der Verbindung über den Katalog geändert werden.
Unter Zubehör lassen sich über die Betätigung von + weitere Werkstoffe zur Designvariante hinzufügen, bzw. nach Markieren des Zubehörs über - wieder aus der Liste entfernen.
Wenn Sie das Fenster mit OK verlassen, wird der Pfostenstoß in der Konstruktion an die beiden Profile angebaut.
Anschlüsse / Designvarianten für den Metallbau
|
© Copyright 1994-2020, ISD Software und Systeme GmbH |
Datenschutz • AGB • Cookies • Kontakt • Impressum