Bauwesen-Funktionen: Pfosten-Riegelanschluss

Im Fenster Bauwesen-Funktionen (ausklappbar am rechten Rand des HiCAD-Fensters) gibt es den Untereintrag Metallbau / Fassadenbau > 3D Metallbau Profil-Anschlüsse.

Dort finden Sie auch einen vordefinierten Pfosten-Riegelanschluss. Hierbei handelt es sich um einen variabel einsetzbaren 3D Metallbauanschluss für Schüco FW50/60.

3D Metallbau Pfosten-Riegelanschluss

Nach Auswahl des Anschluss müssen Sie zum Einbau zunächst das Profil anklicken, das angeschlossen wird, und danach das, an dem angeschlossen werden soll.

Danach öffnet sich das Dialogfenster zur genauen Konfiguration.

3D Metallbauanschluss

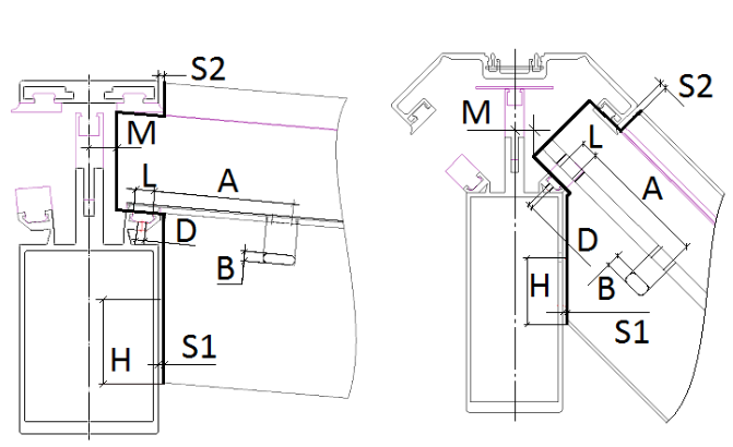
Unter Geometrie können Sie links die Werte (in mm) zu den Abstandslängen vergeben, die rechts mit den entsprechenden Buchstaben in der Grafik der Variante gekennzeichnet sind:

definiert den Luftspalt zwischen Riegel und Pfosten

definiert den Luftspalt zwischen den Deckleisten

definiert den Luftspalt zwischen Pfostenachse und dem Riegeleinstand (Anfang)

Breite des Langlochs im Riegel

Länge des Langlochs im Riegel

Durchmesser der Lochbohrung im Pfosten (für die Riegelbefestigung) 

Wollen Sie zusätzliche Bohrungen erstellen (durch Haken an der Stelle setzen, zusätzliche Langlöcher im Riegel, bzw. zusätzliche Borhungen im Pfosten für die Befestigung von Riegel-Einschubprofilen), wird der Dialog um Optionen dazu erweitert.

3D Metallbauanschluss, zusätzliche Bohrungen

Jeweils für Raster X und Raster Y (X- bzw.Y-Richtung des Rasters der Bohrungsdraufsicht) können Sie die Anzahl der Bohrungen bestimmen.

Darunter können Sie die Abstände zwischen den Bohrungen entweder untereinander einzeln vergeben (die entsprechende Anzahl an Eingabefeldern wird zur ausgewählten Anzahl der Bohrungen eingeblendet), oder bei gleichen Abständen im Feld Alle Ändern den Wert eingeben, mit dem dann alle Bohrungen gesetzt werden.

Unter Berechnungsverfahren lässt sich zwischen 1 und 2 wählen: Bei Berechnungsverfahren 1 steht die Skizzenkante parallel zur Achse des Teils, bei Berechnungsverfahren 2 senkrecht dazu, wie die folgende Grafik veranschaulicht:

Berechnungsverfahren

Die Auflistung Zubehör im unteren Bereich des Dialogs zeigt an, welche nicht in der Zeichnung mit abgebildeten Teile und Bearbeitungen mit zur Stückliste des Teils gehören. Mit einem Klick auf + können Sie weitere Teile hinzufügen, indem Sie diese im folgenden Dialog mit einem Klick auf aus dem Katalog wählen. Mit dem Minus-Zeichen können Sie Teile natürlich auch wieder aus der Liste entfernen.

Hinweise:

Verwandte Themen

Bauwesen-Funktionen: Metallbau/ Fassadenbau

Version 1802 - HiCAD Metallbau | Ausgabedatum: 09/2013 | © Copyright 2013, ISD Software und Systeme GmbH